︎
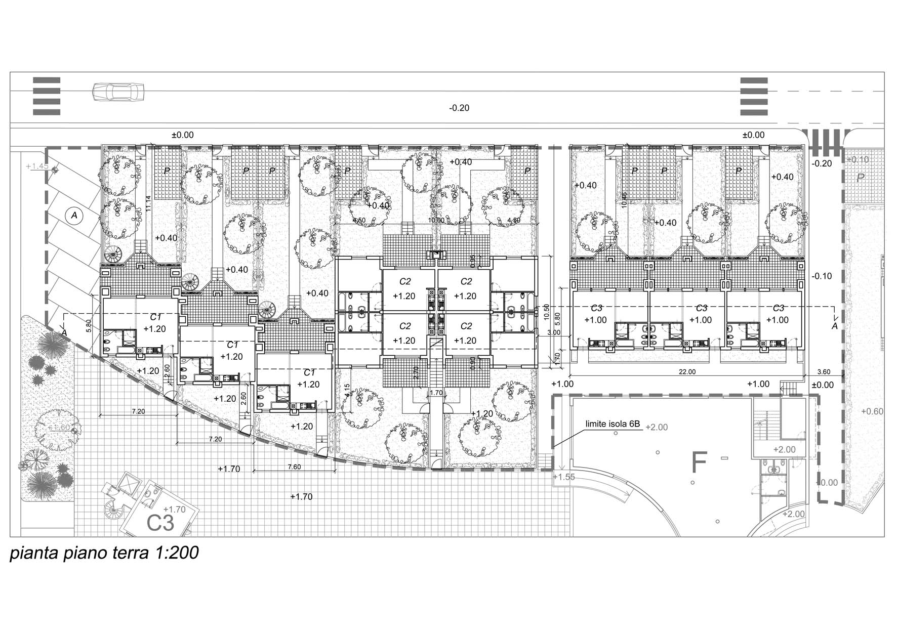
Tipologie Abitative Via della Pineta - Fregene, 2015