︎
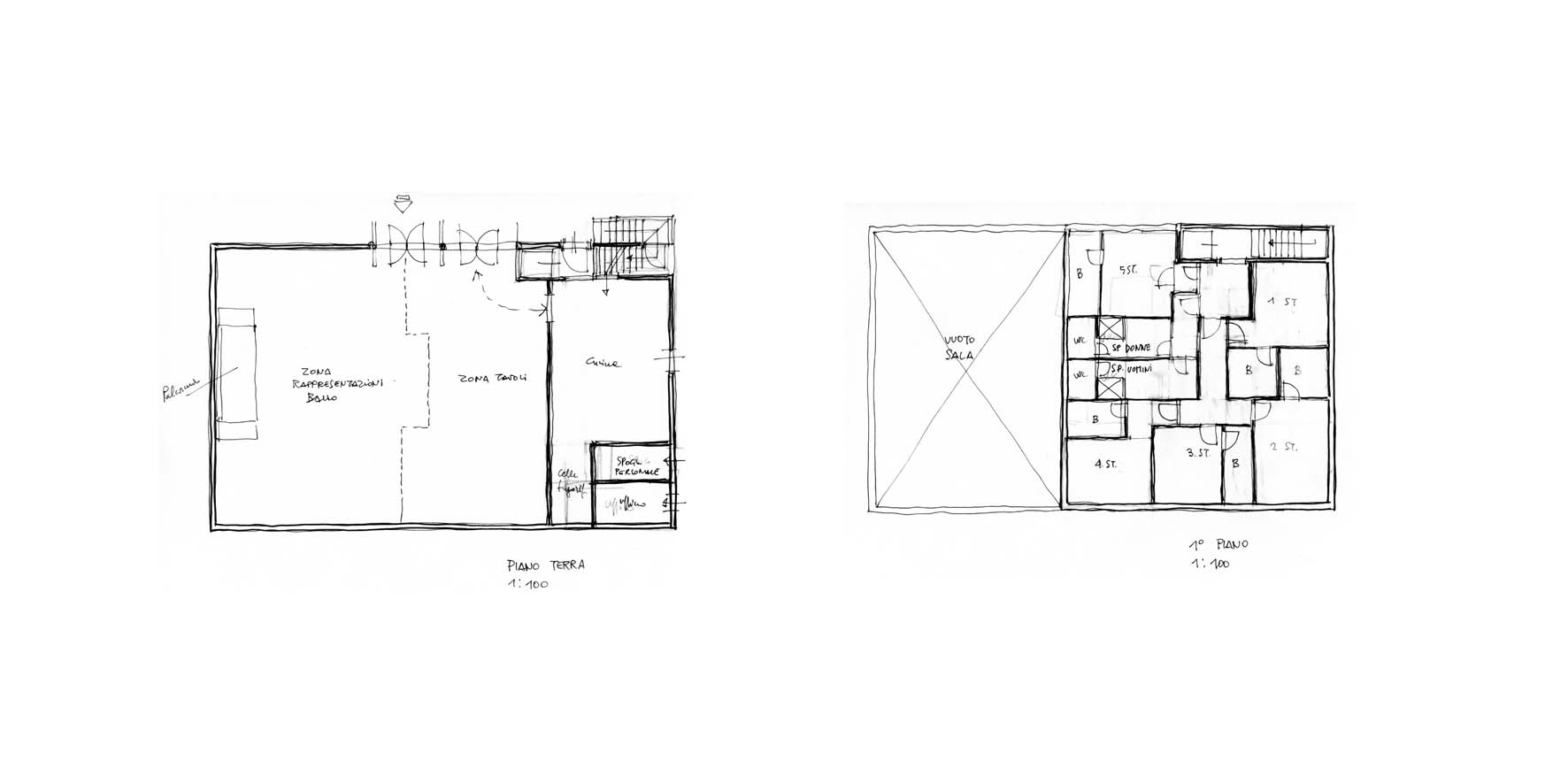
Centro ricreativo Via Flaminia (Roma), 2014