︎
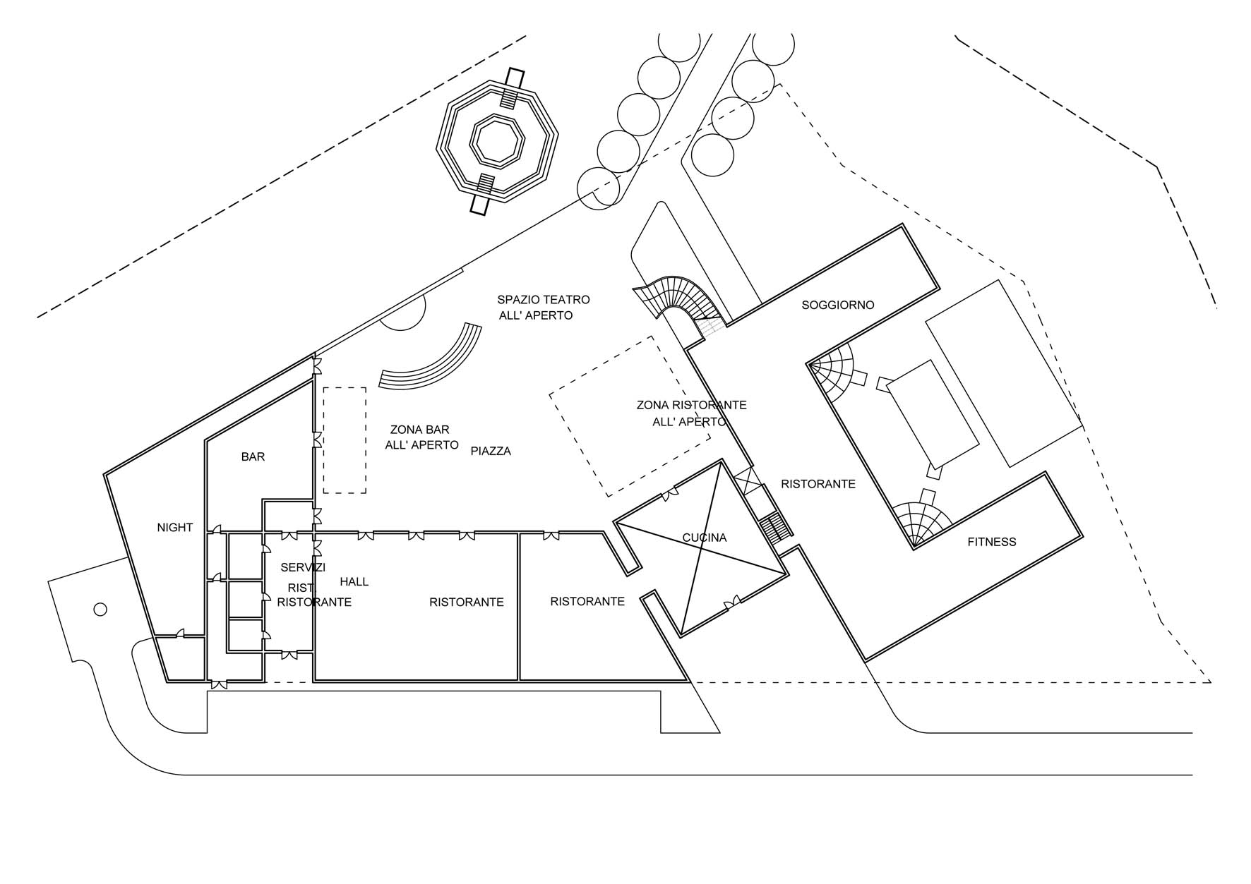
Terme di Canino, 2011
Struttura necessaria per le terme di Canino