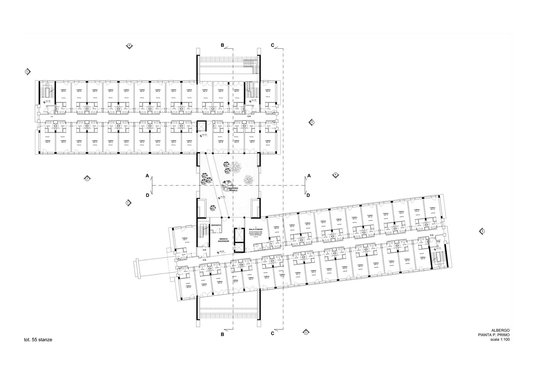
Albergo a Mistica - 2^ versione (Roma) - 2011
Progetto per un albergo a 3 stelle della Hilton. Il primo albergo di Mistica purtroppo è stato spostato per una
indicazione della Soprintendenza. La realizzazione finale, per questioni “tecniche”, è stata modificata non dal sottoscritto.
Progetto per un albergo a 3 stelle della Hilton. Il primo albergo di Mistica purtroppo è stato spostato per una
indicazione della Soprintendenza. La realizzazione finale, per questioni “tecniche”, è stata modificata non dal sottoscritto.





Schizzi e Disegni







