︎
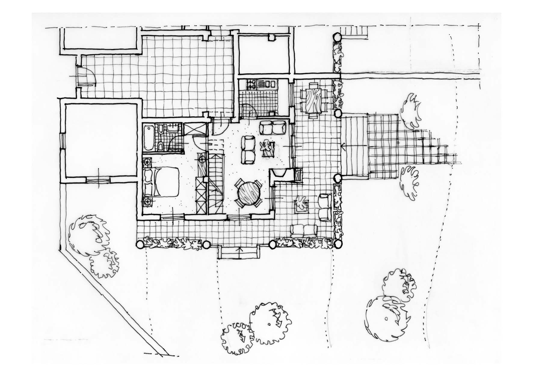
Centro Residenziale Torre Aurelia, 2007
con Maria Cipriano
Un centro abitativo ispirato a piccole torri