︎
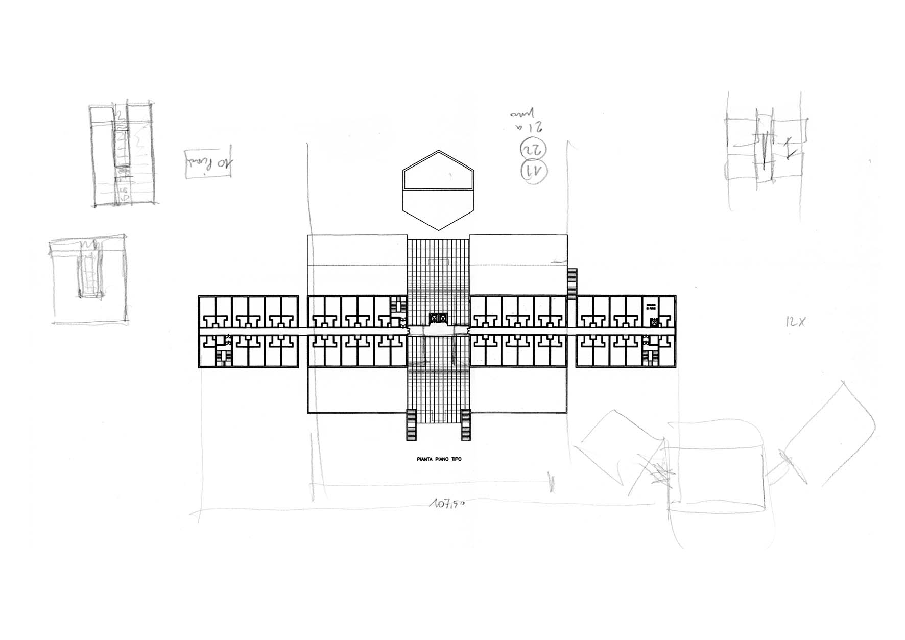
Albergo Novotel Fiera di Roma (Roma) - 2007
Bozza