︎
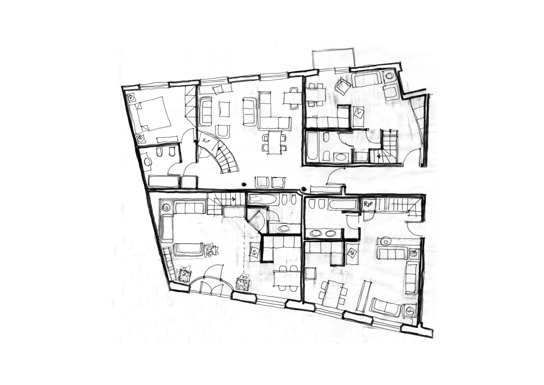
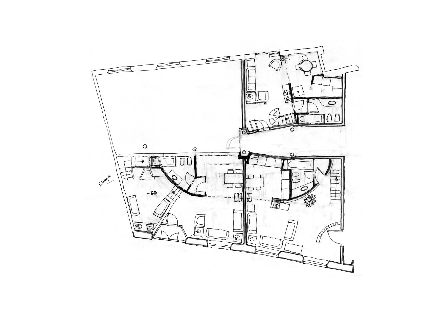
Via Ciancaleoni - 2004
con Maria Cipriano
Una preesistenza “riempita” di alloggi al centro di Roma