︎
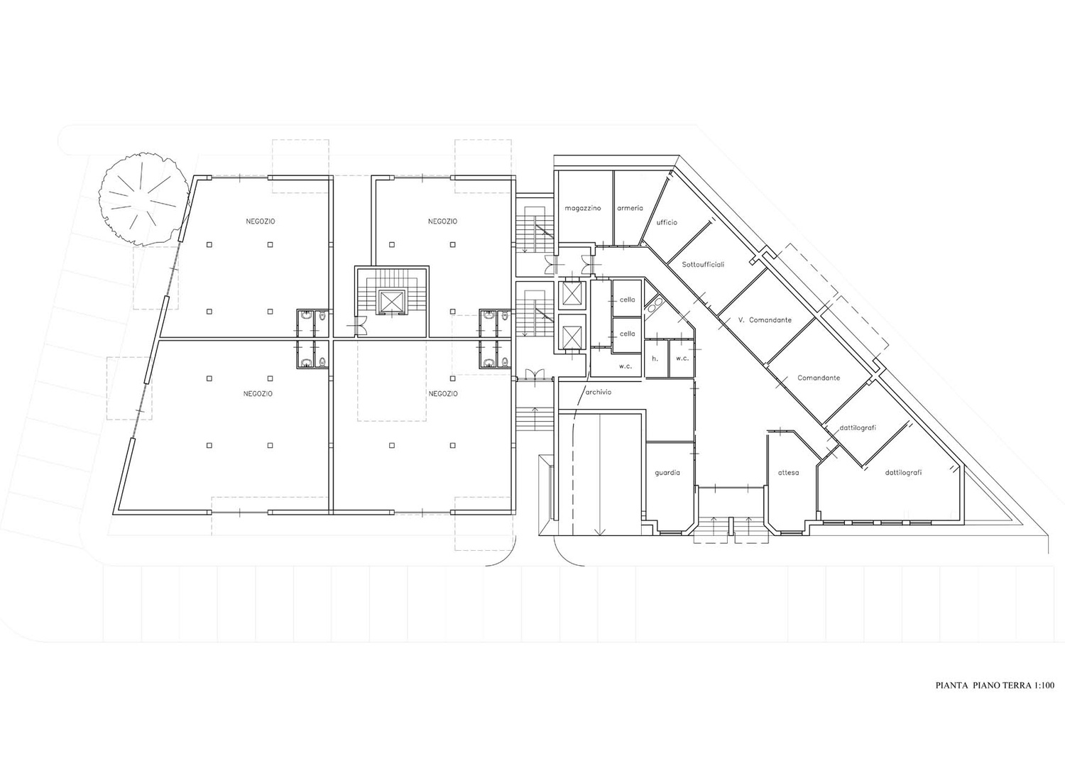
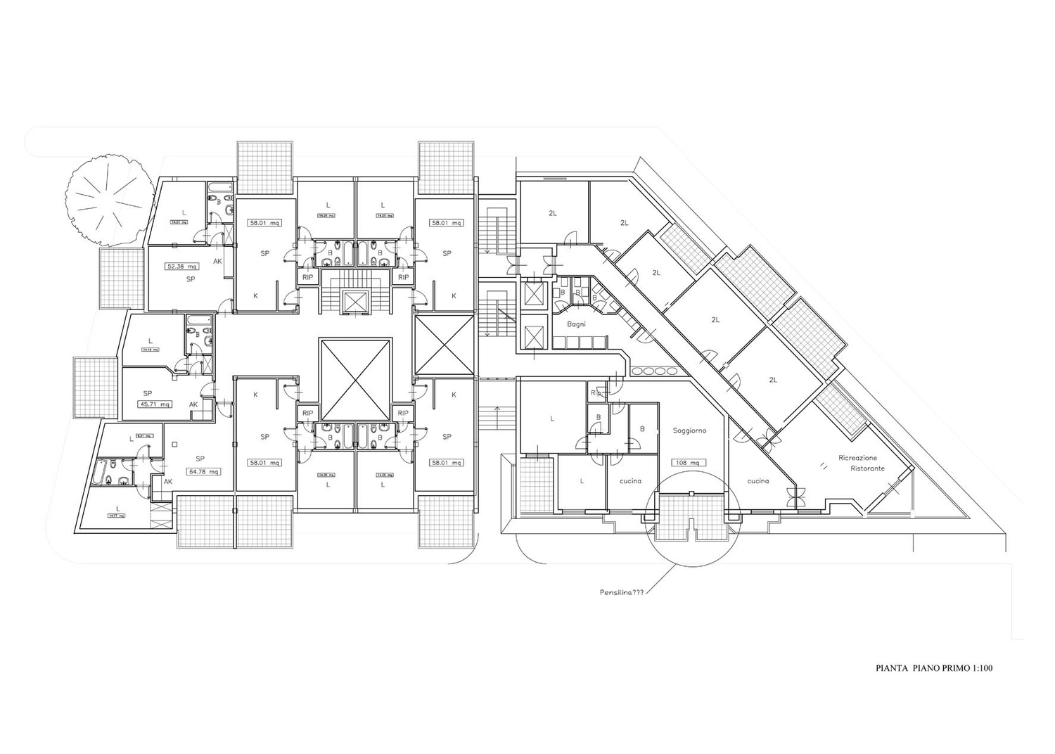
Caserma - Residence all’Infernetto (Roma), 2004