︎
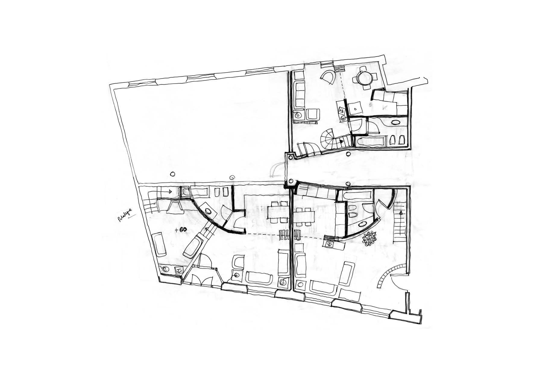
Abitazioni Via Ciancaleoni (Roma), 2004
con Maria Cipriano