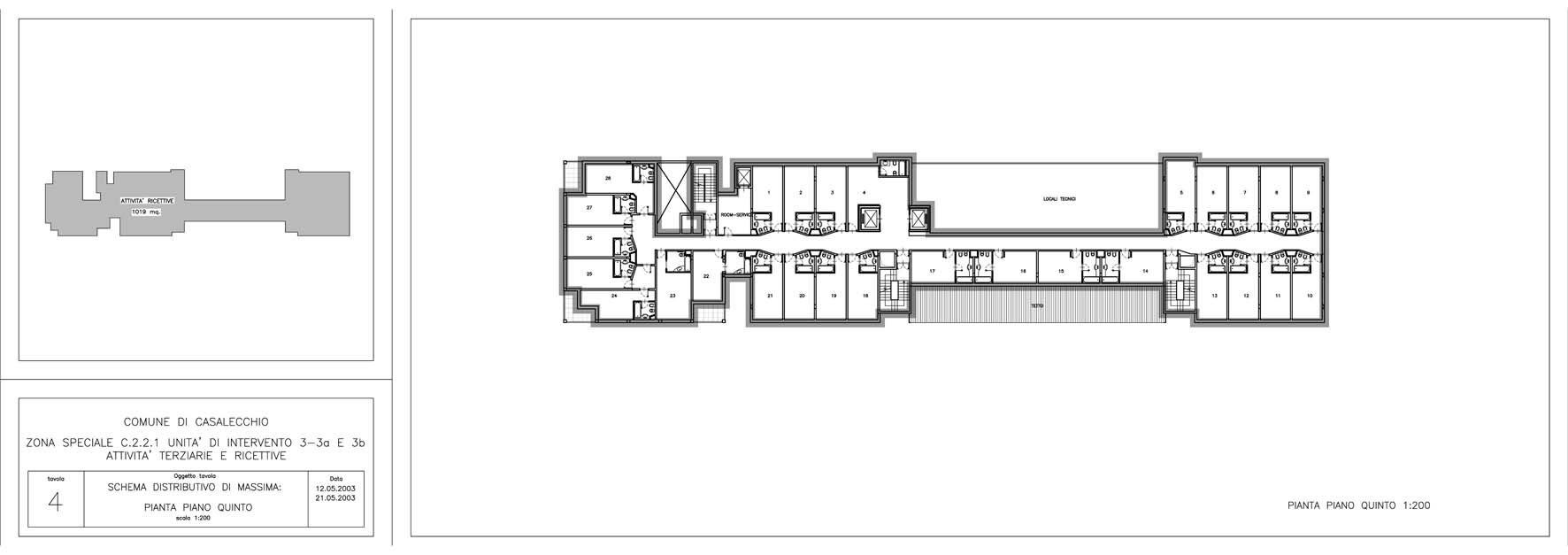
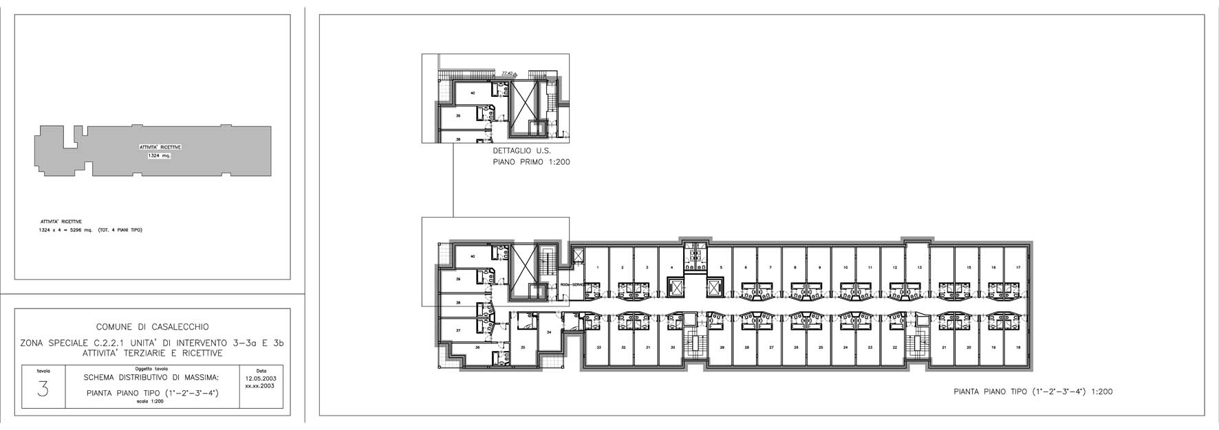
︎
Albergo a Casalecchio (Bologna) - 2003