︎
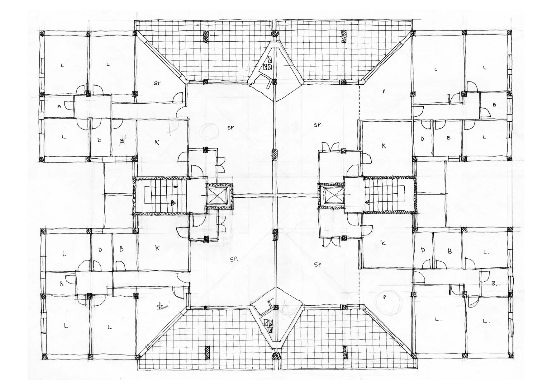
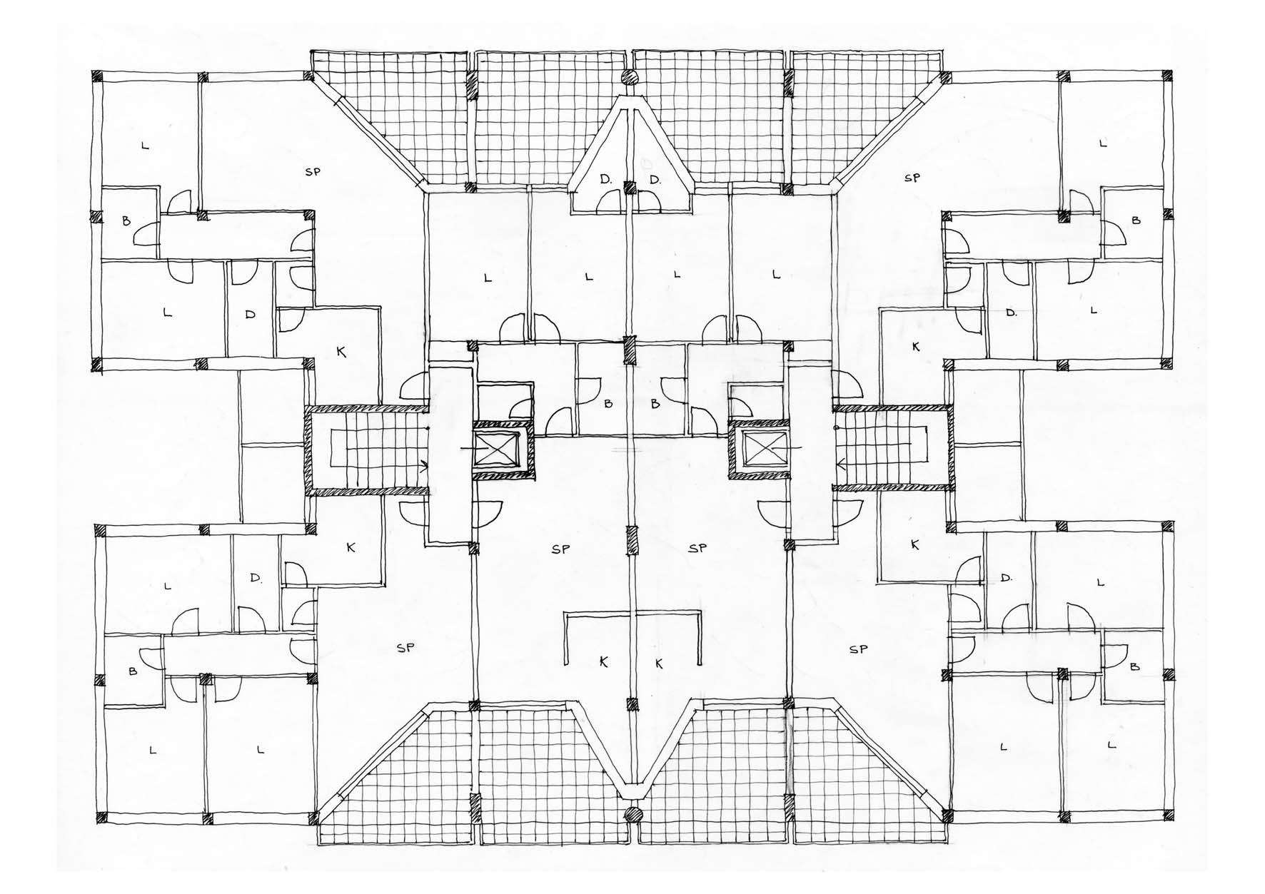
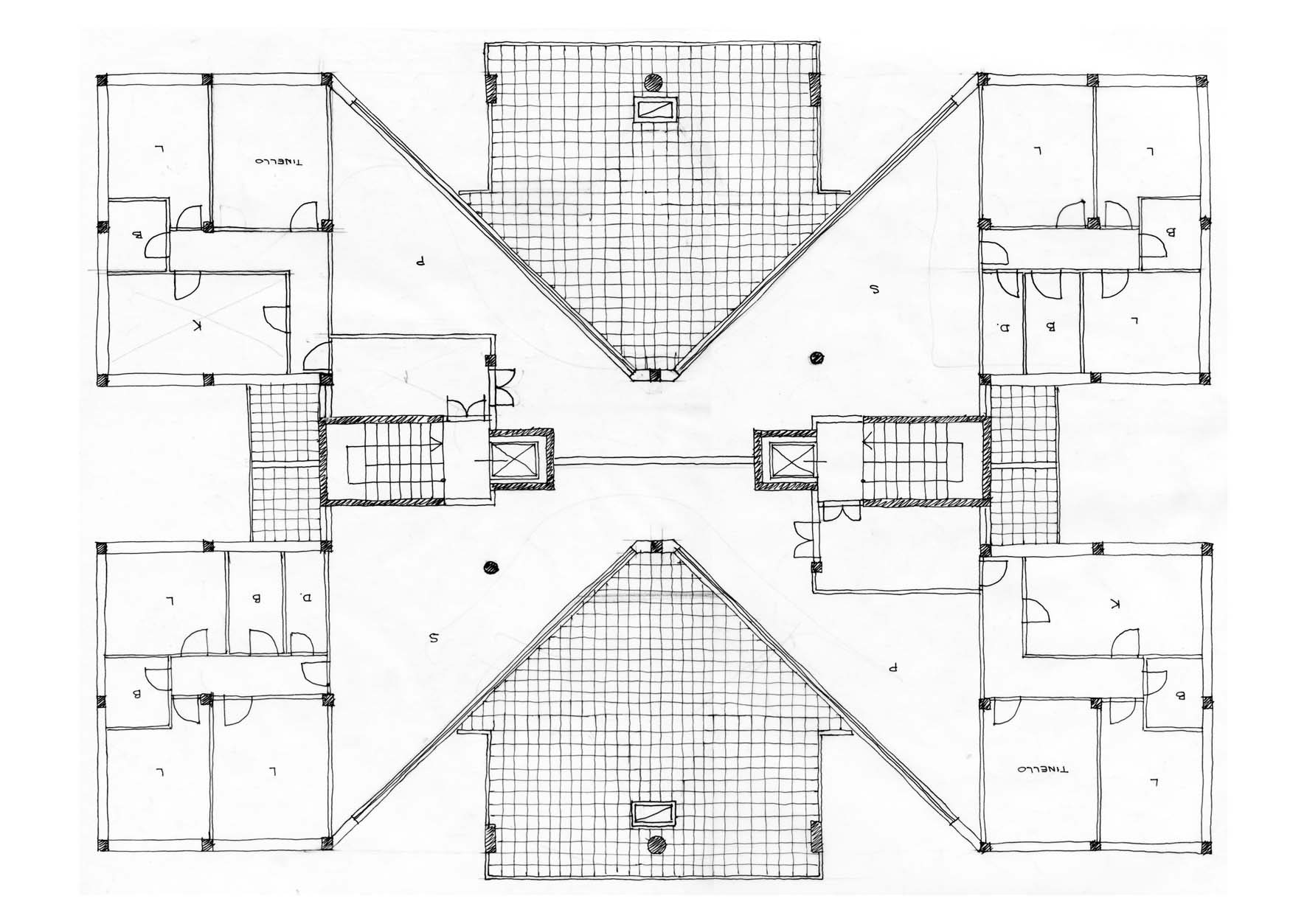
Abitazioni al Torrino - 2003