︎
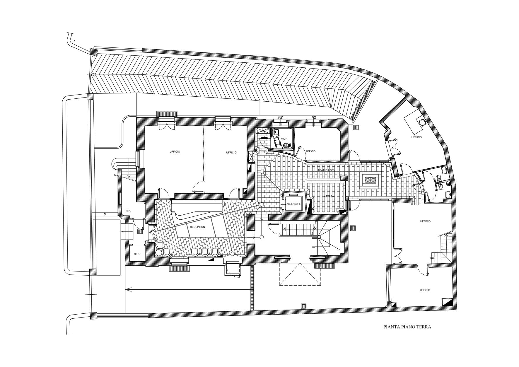
Uffici a Via Beccaria (Roma), 2000