︎
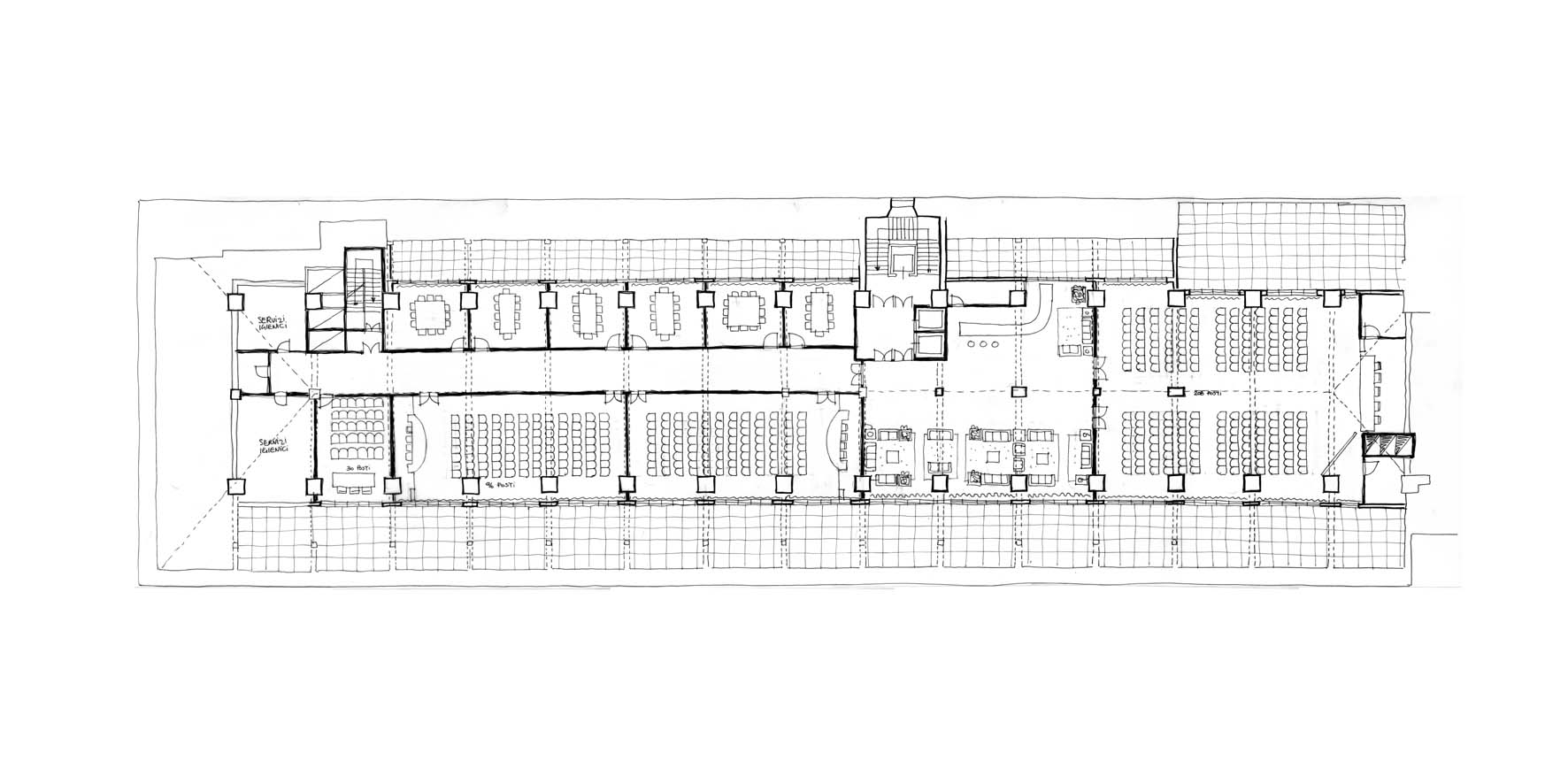
Albergo Exedra (Roma) - 2000
Dal Gruppo Boscolo ho avuto l’incarico di coordinare gli architetti già nominati.
Alcuni studi