︎
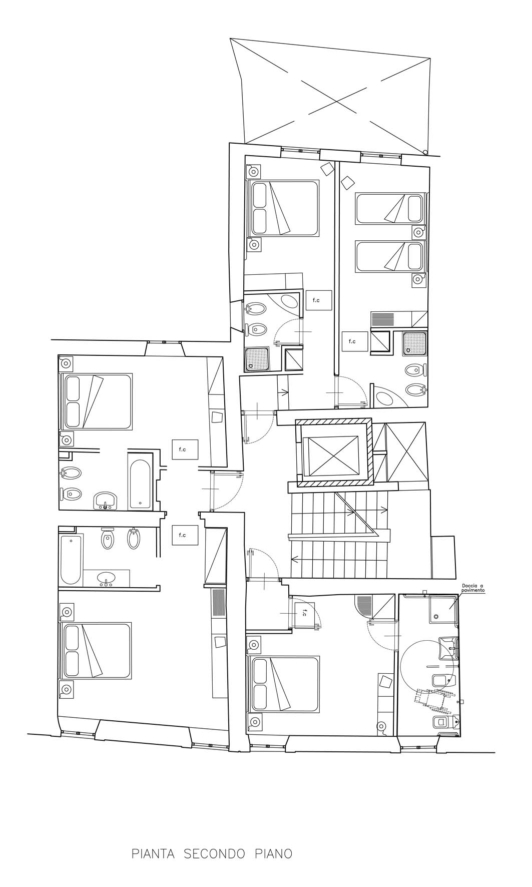
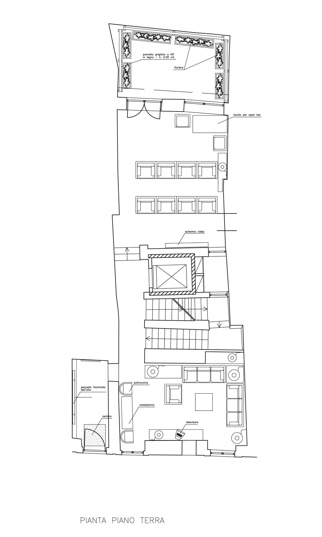
Albergo Accademia Vicolo Scavolino (Roma), 2000