︎
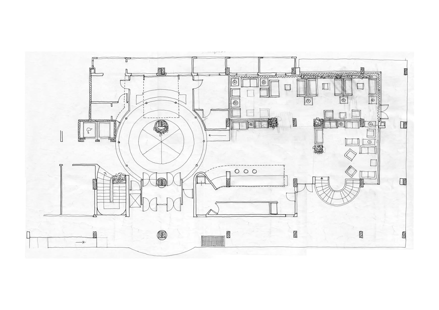
Albergo IBIS a Tor Bella Monaca (Roma) - 1999
Una struttura di cemento armato già esistente ha condizionato le facciate e la volumetria