︎
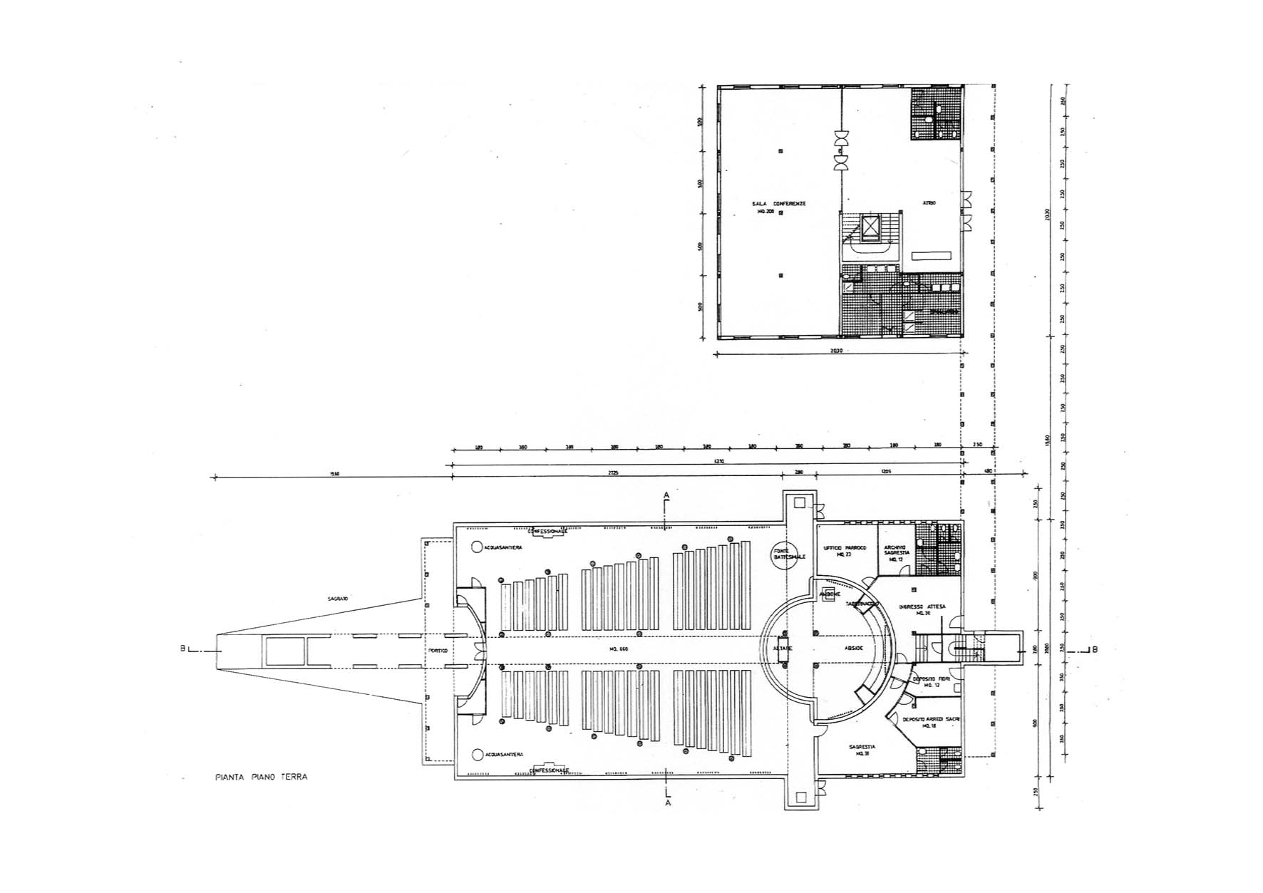
Chiesa a Tor Tre Teste (Roma), 1994
con Reconsult