︎
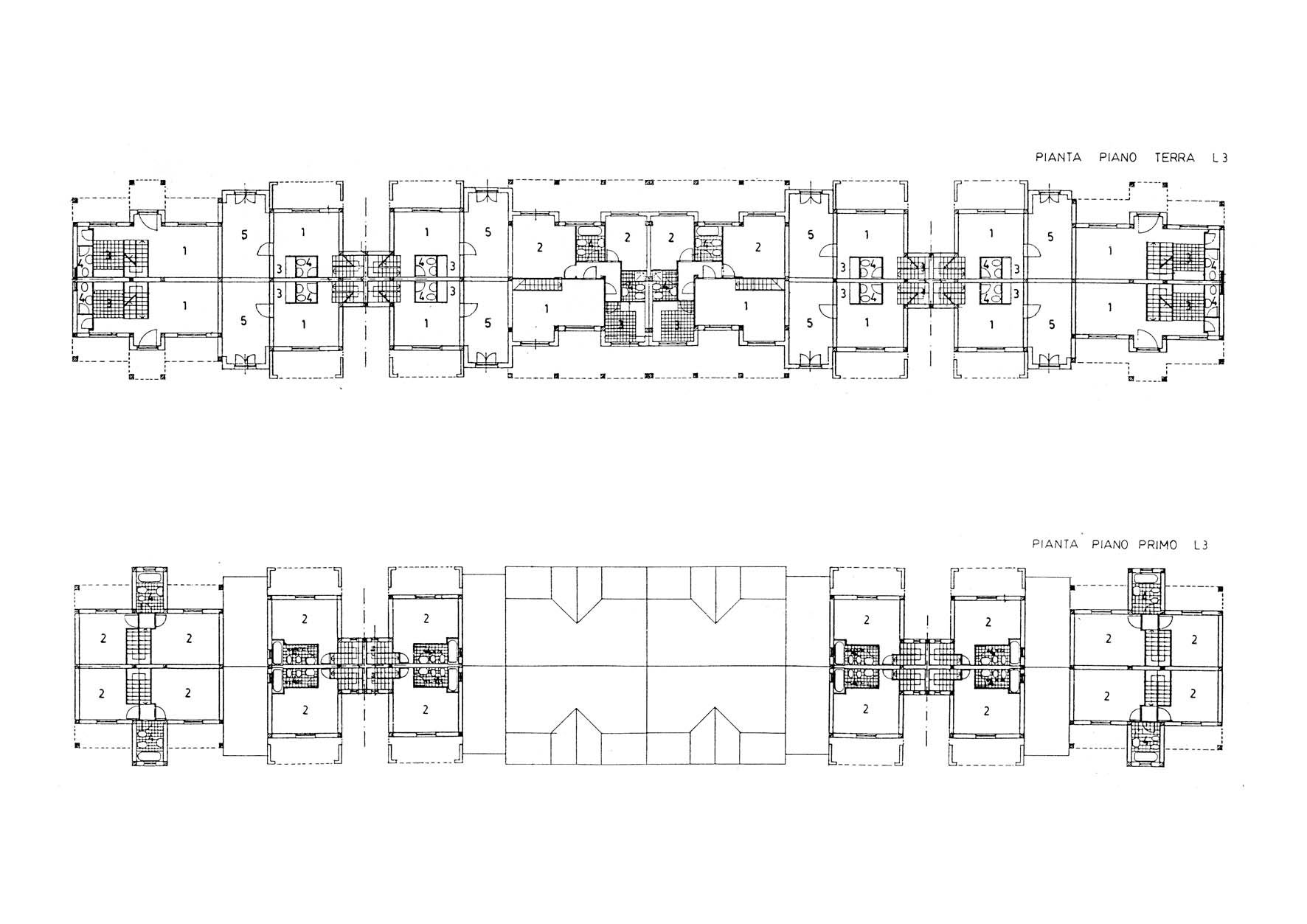
Case a Cerveteri - 1993
con Maria Cipriano
Bifamiliari per seconde case