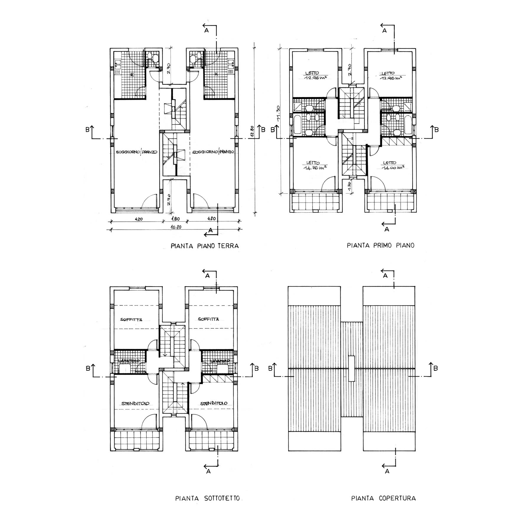
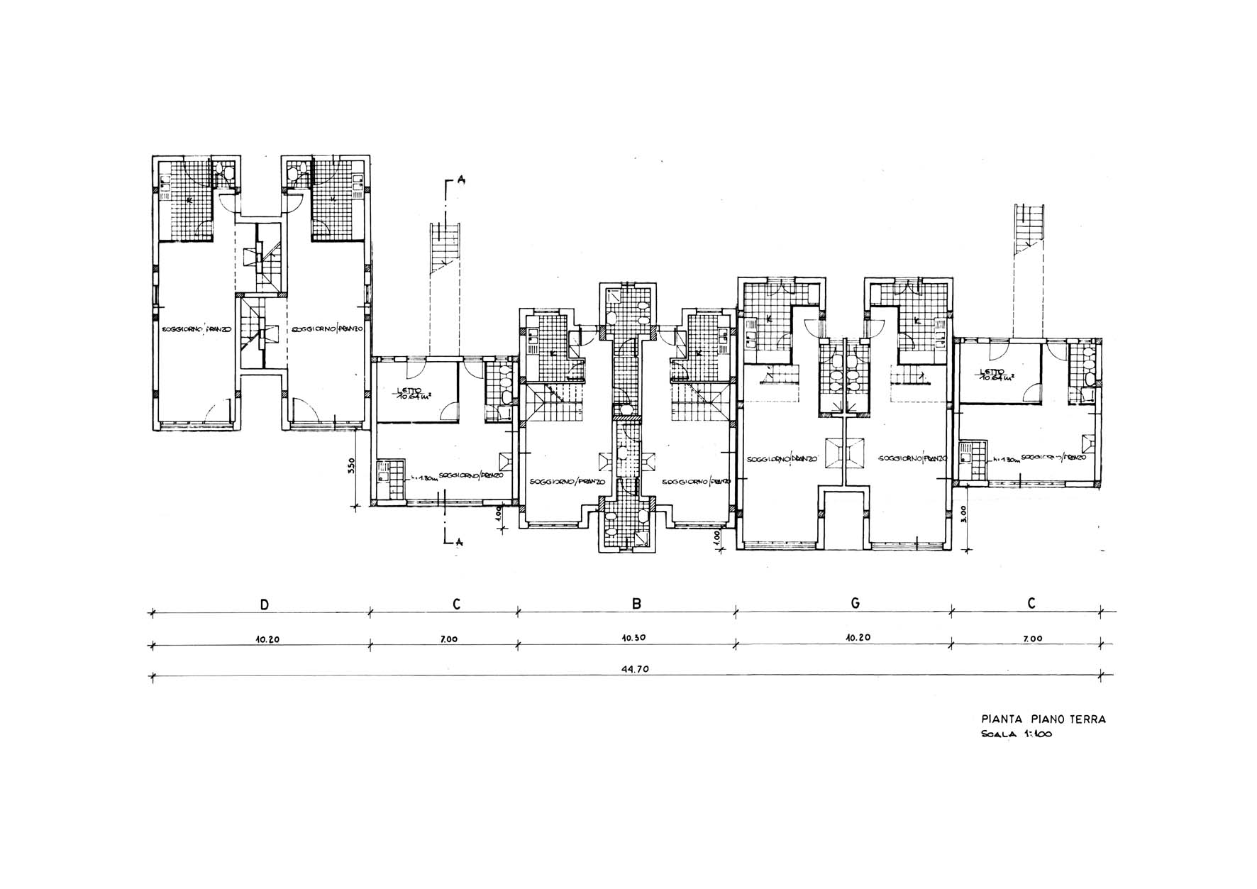
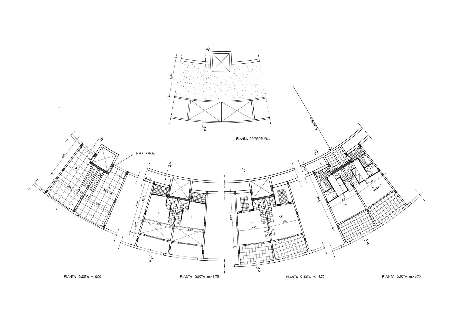
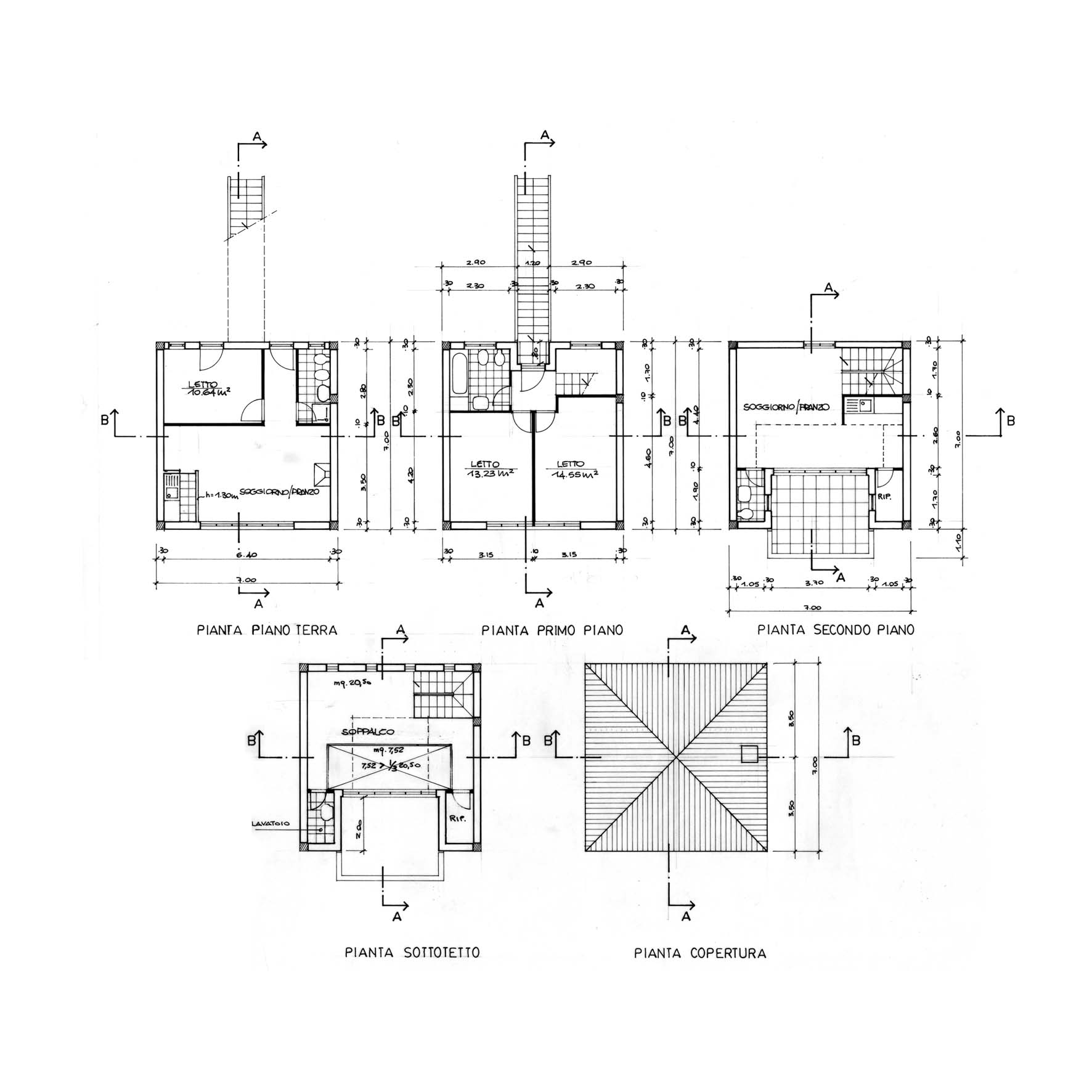
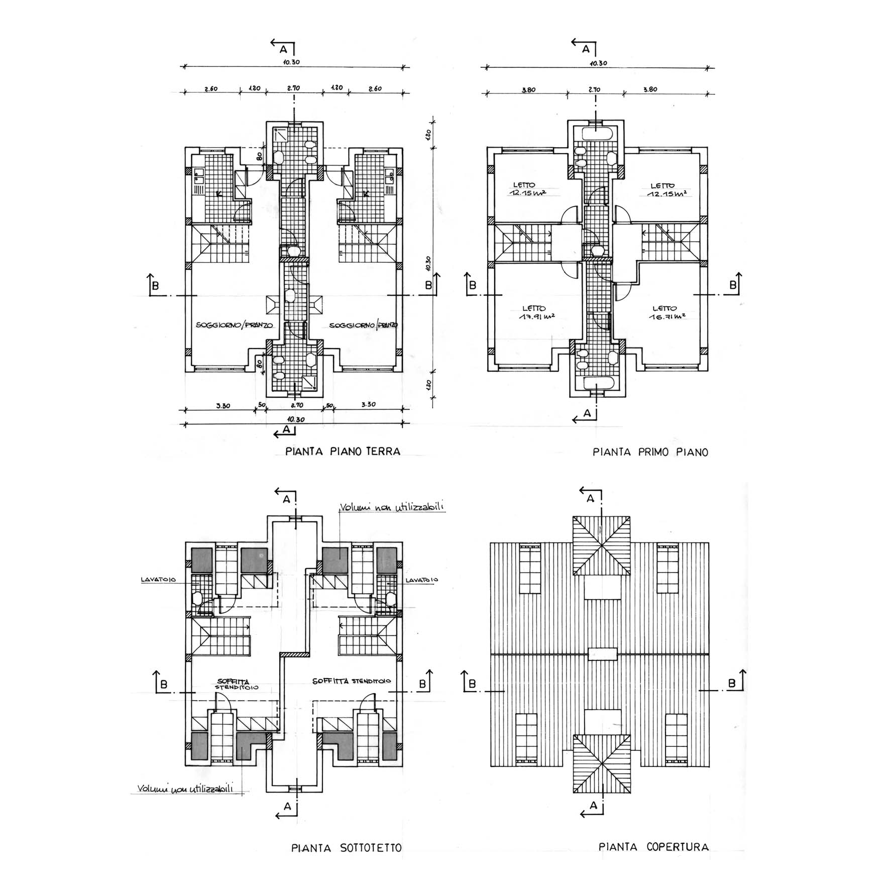
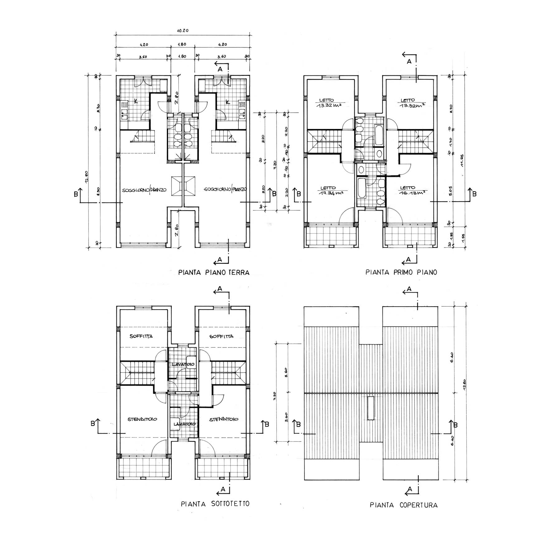
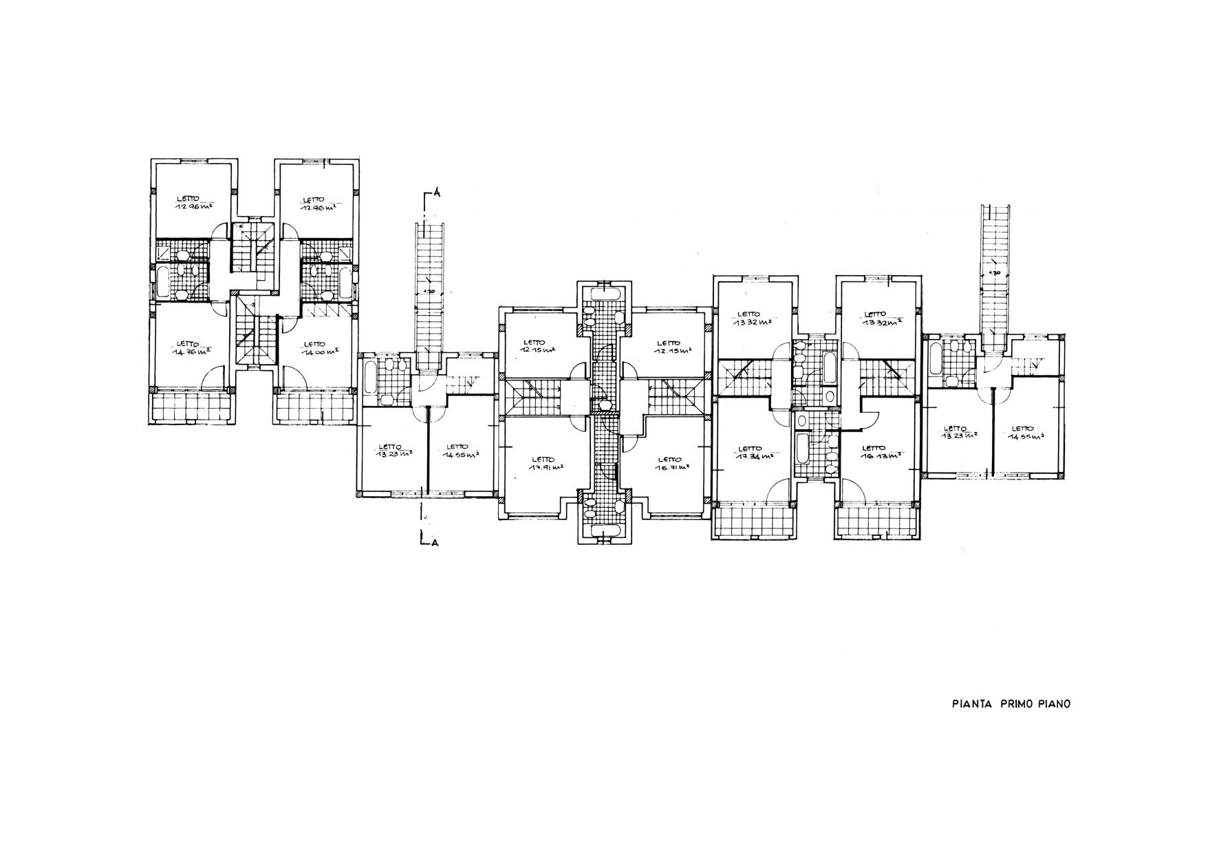
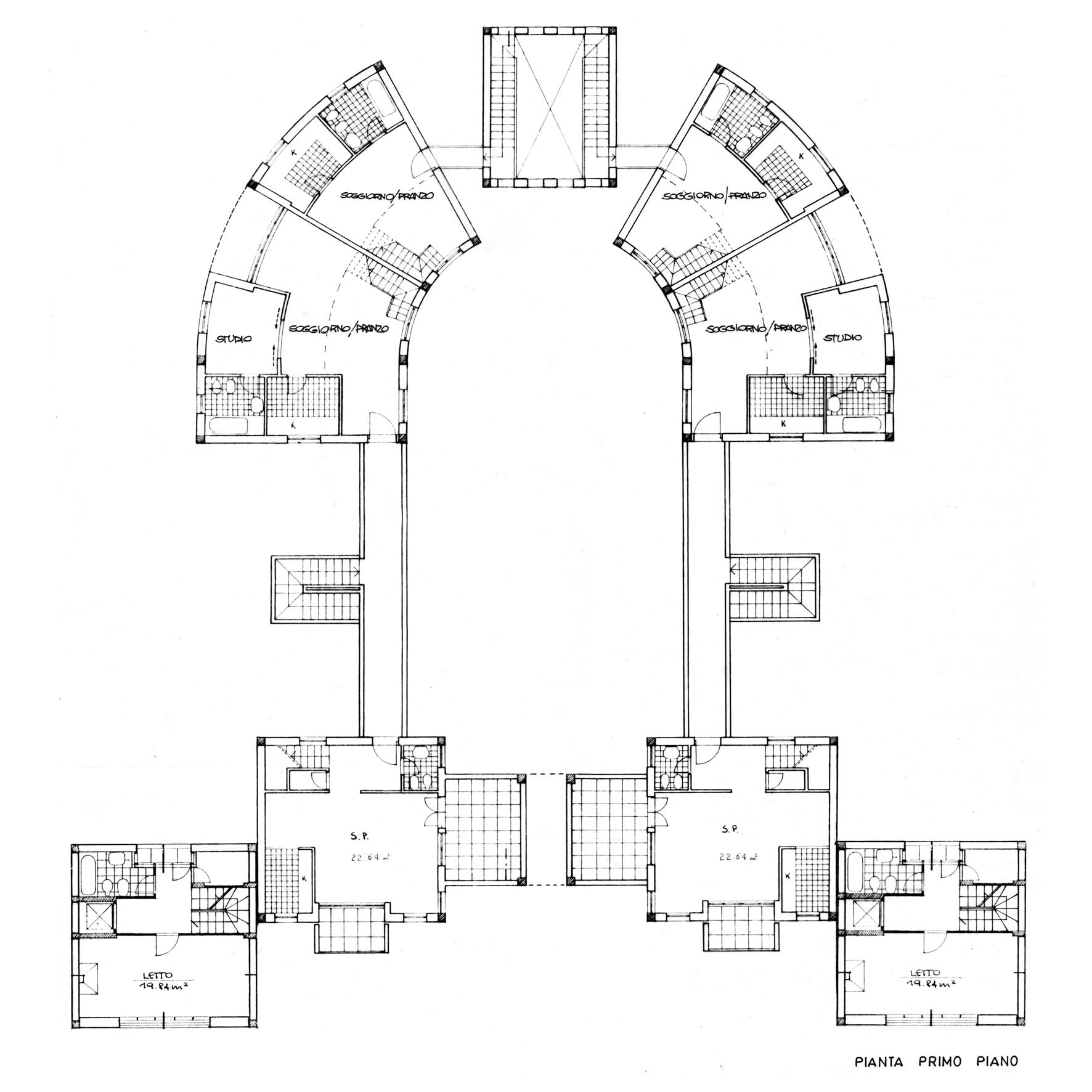
︎
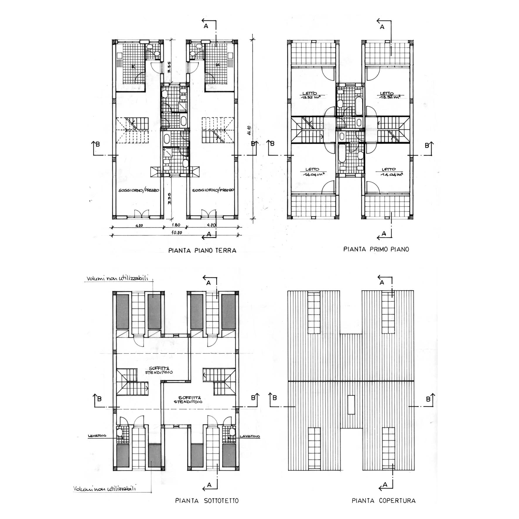
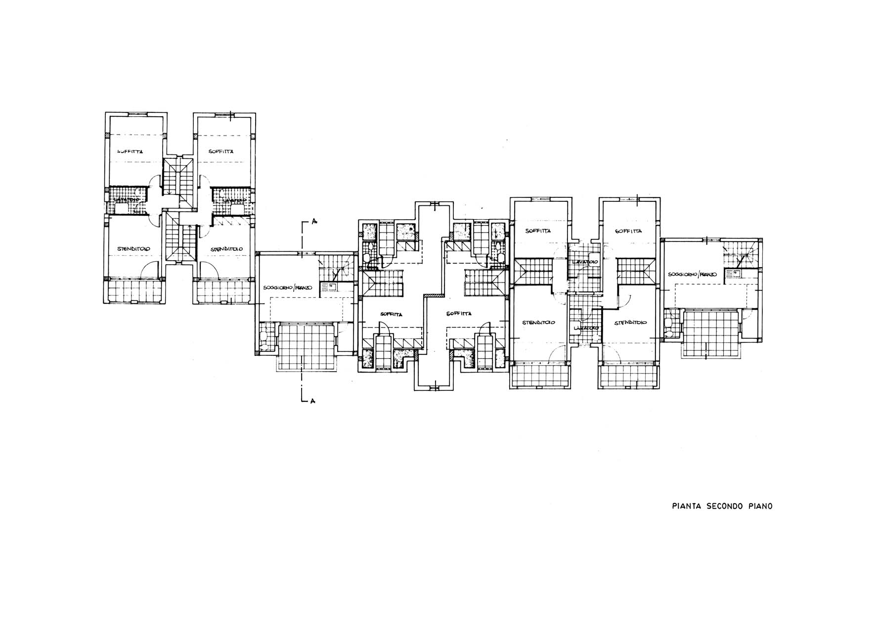
Borgo a Sutri, 1993
con ing. F. Dell’Olio e Maria Cipriano