︎
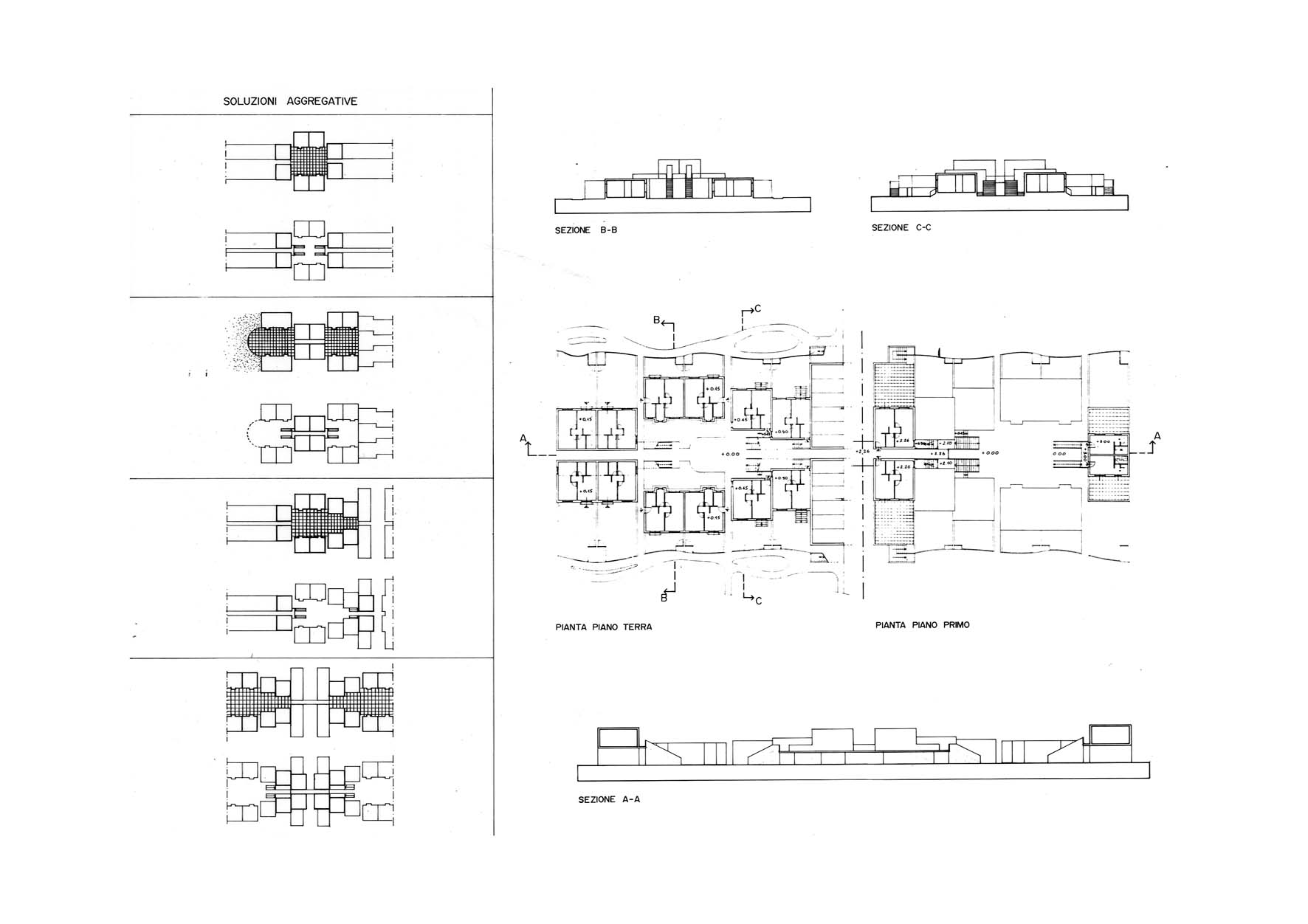
Marina D’Ugento, 1989
con Reconsult
Intervento turistico richiamantesi alle tipologie abitative storiche della Puglia