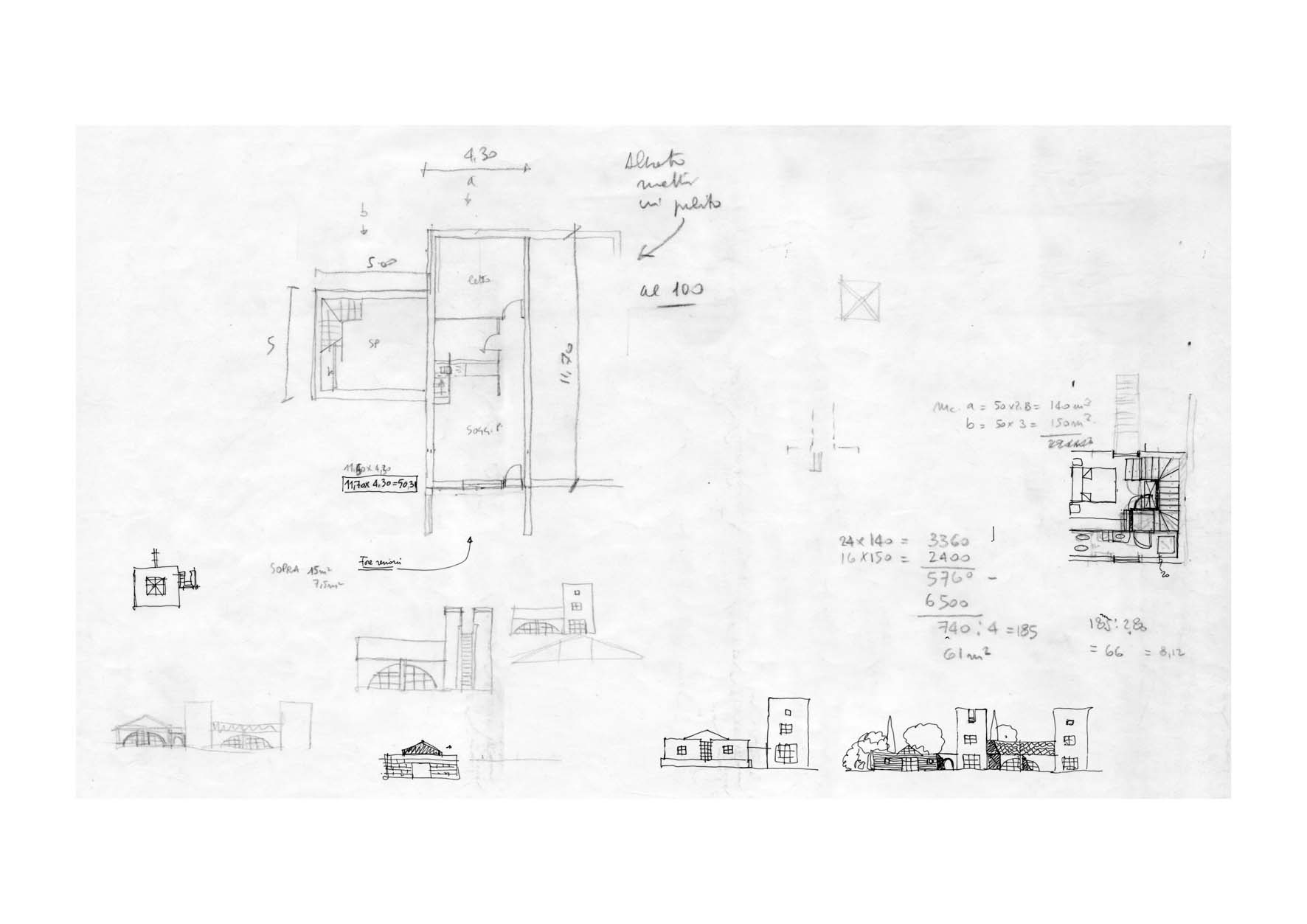
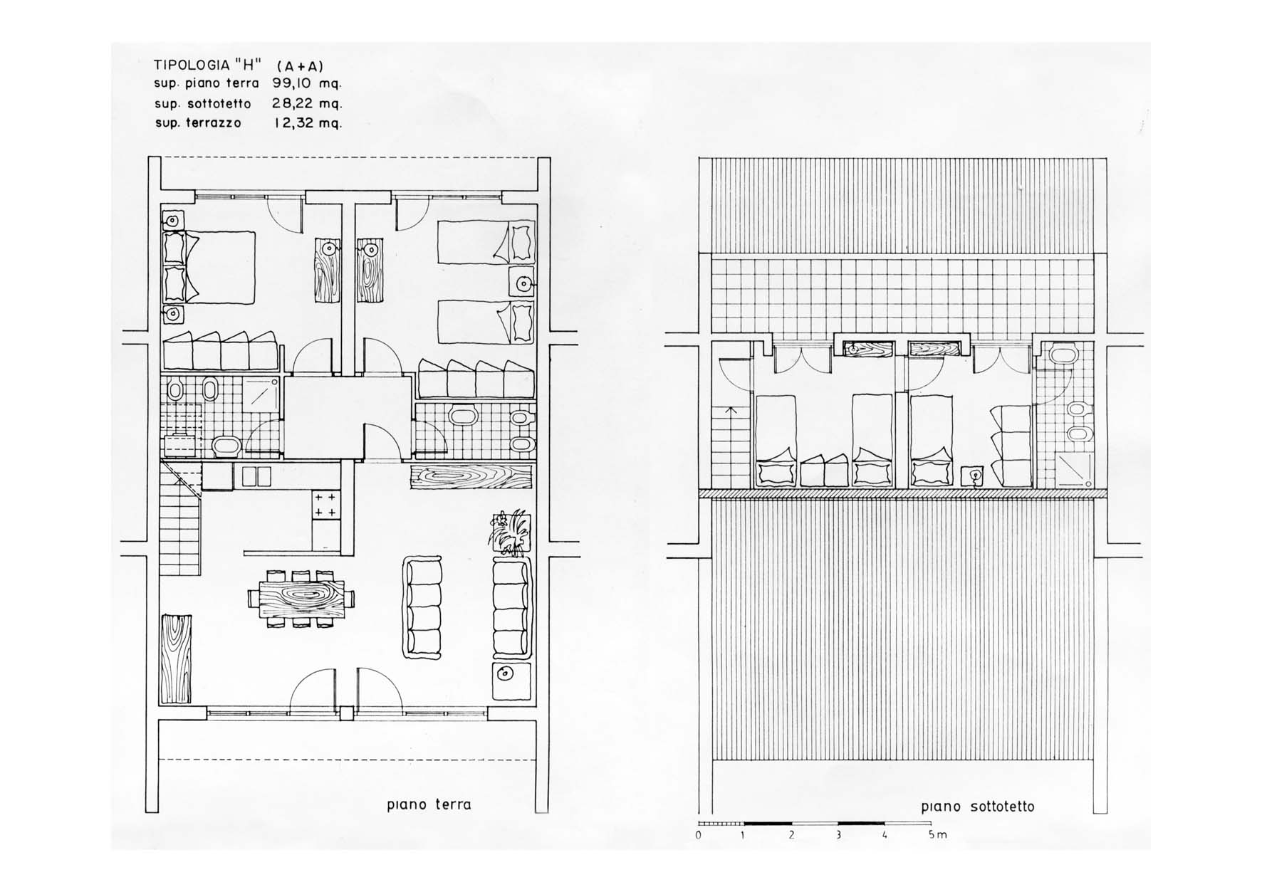
Centro residenziale Tor San Lorenzo (Ardea) - 1989
con Maria Cipriano e Franco Tisei
La vicina Tor San Lorenzo ha condizionato la progettazione con le torri
con Maria Cipriano e Franco Tisei
La vicina Tor San Lorenzo ha condizionato la progettazione con le torri


















