︎
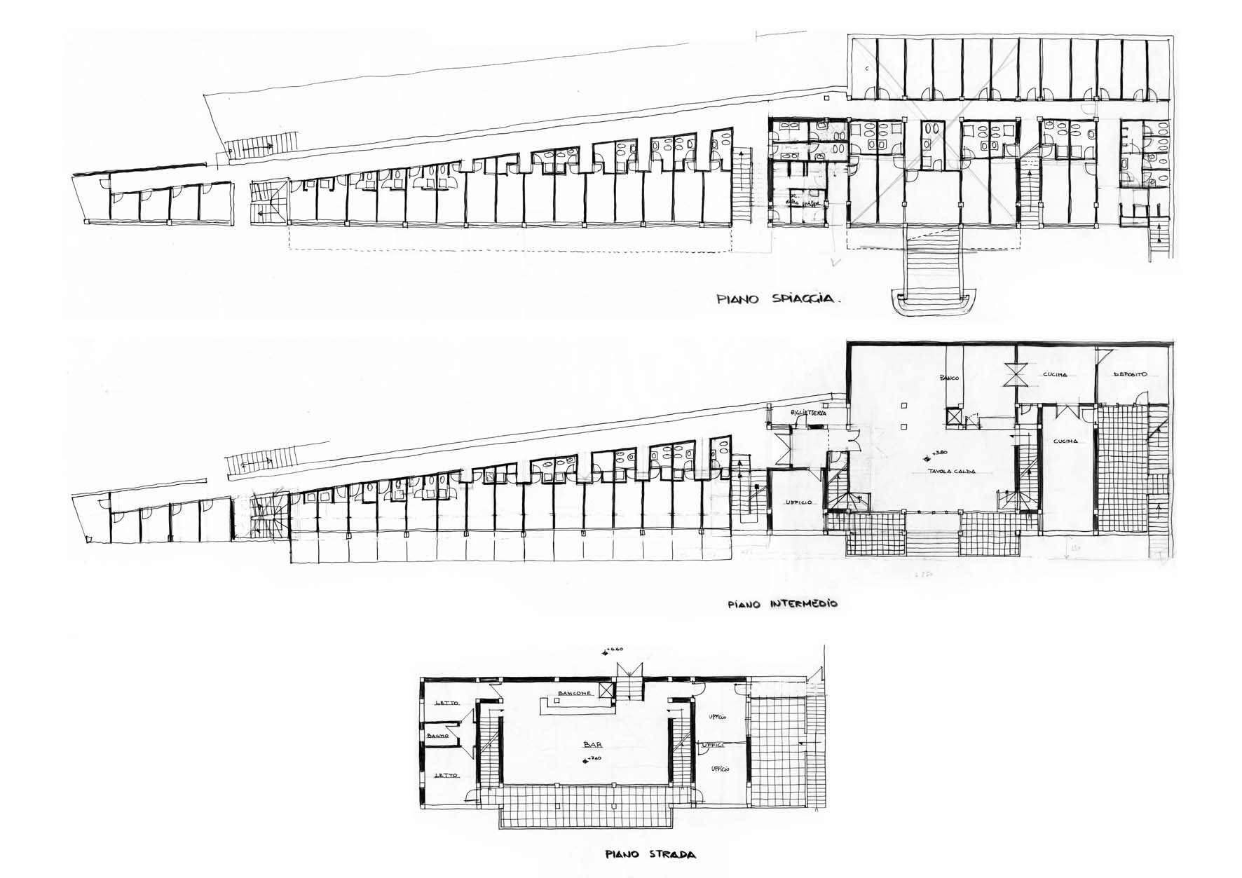
Stabilimento balneare a Nettuno, 1984
Stabilimento che diviene parte integrante delle cabine