︎
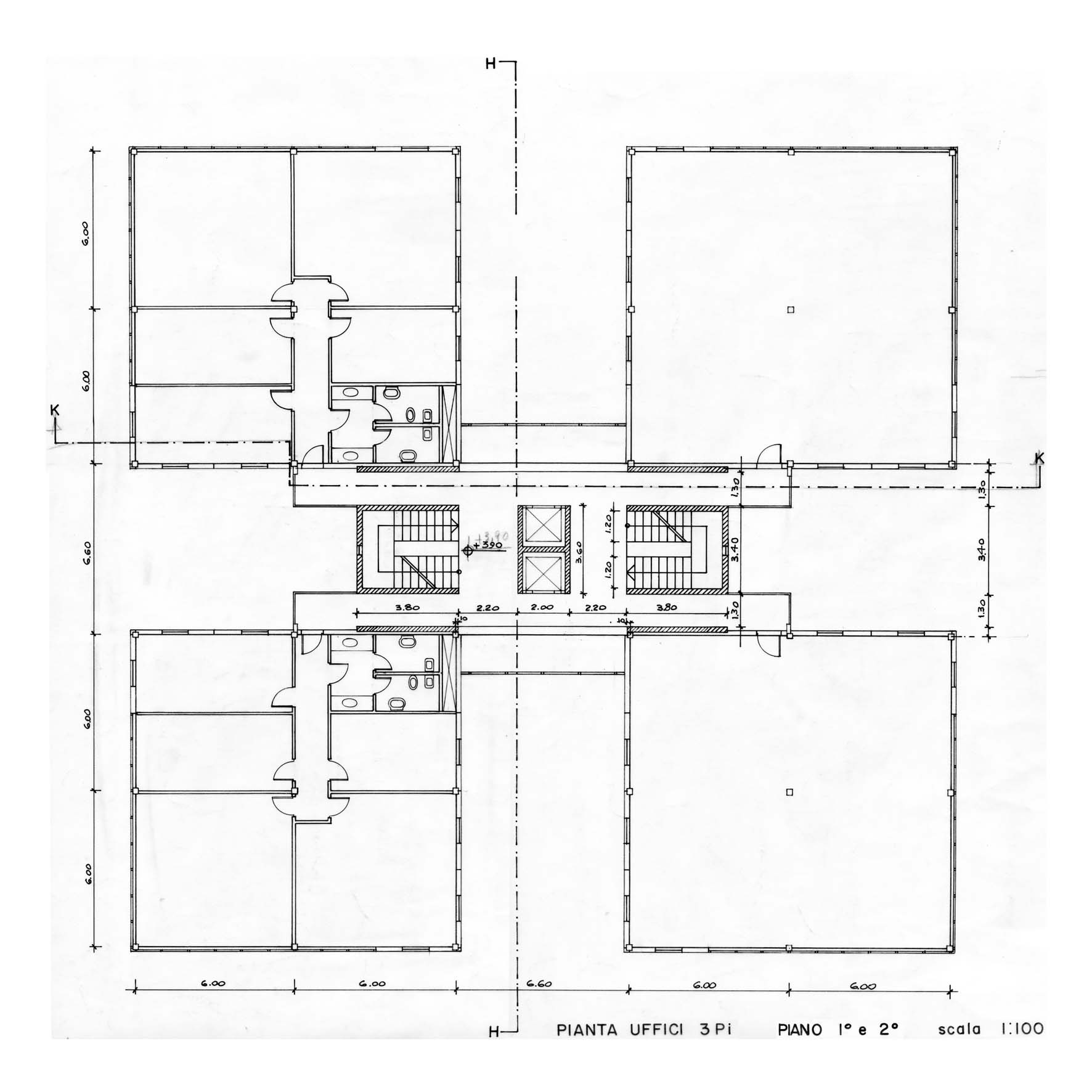
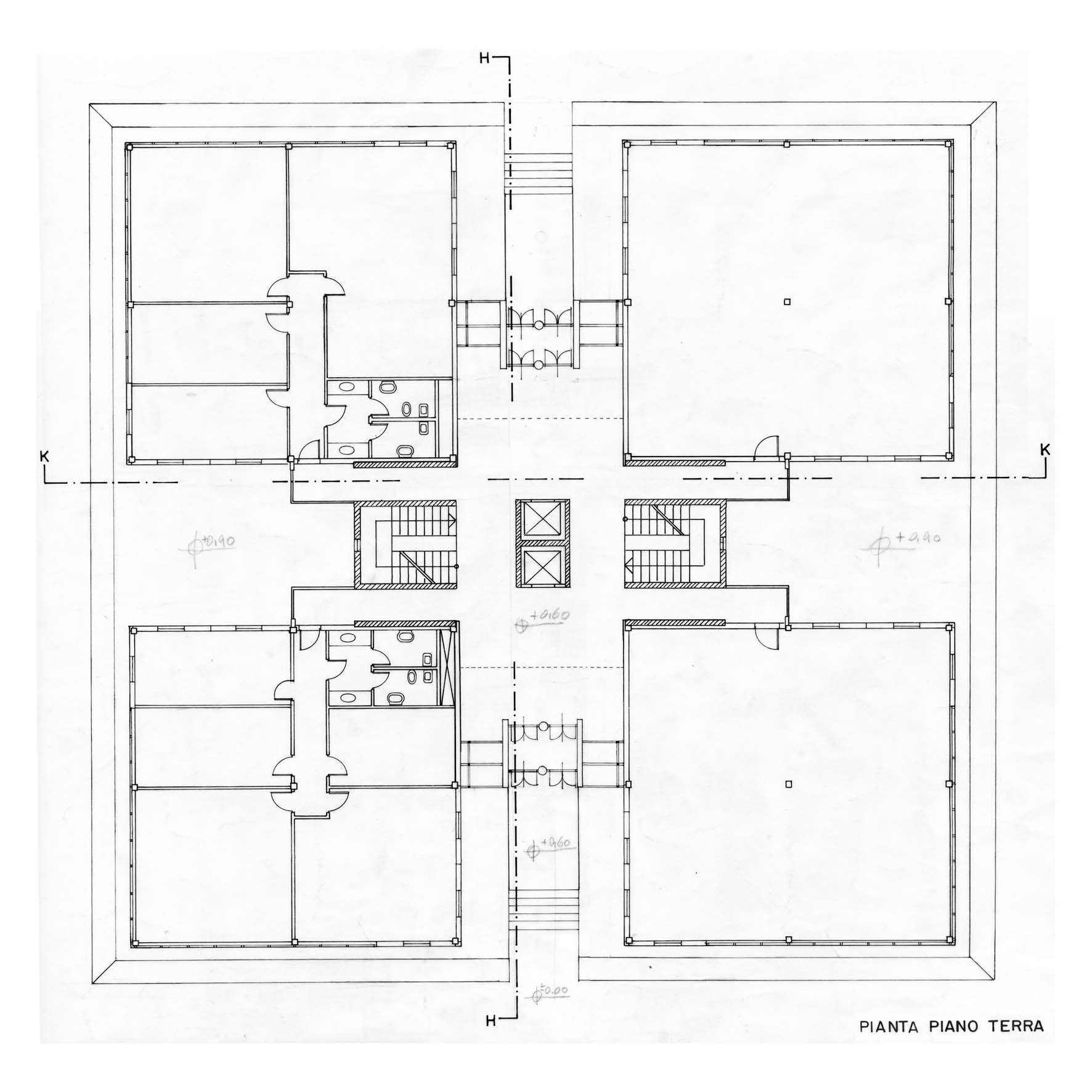
Edificio per Uffici ad Ariccia, 1981