︎
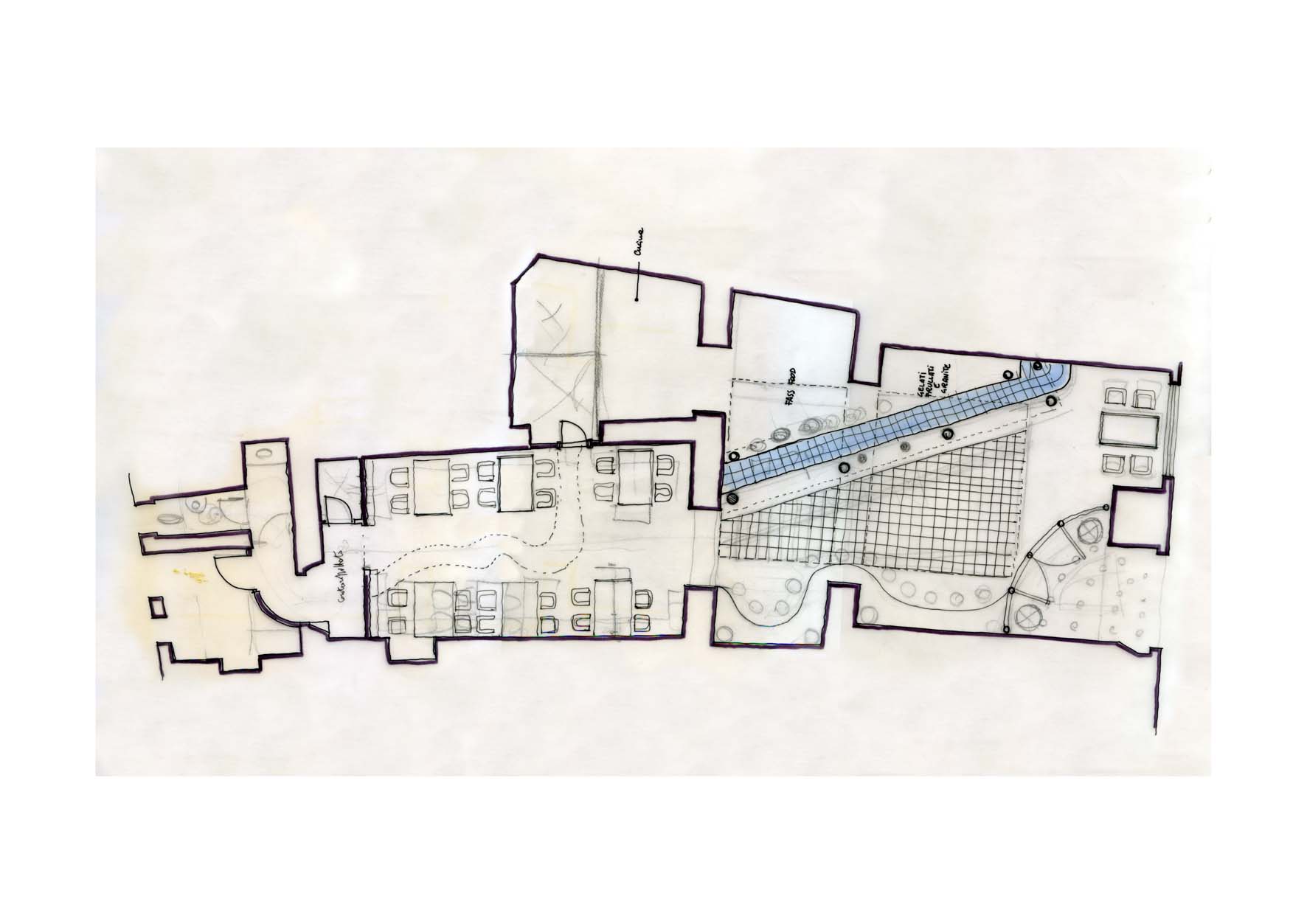
Bar Corso Vittorio (Roma), 1979
Un grande mostro attaccato al soffitto distribuisce il condizionamento