︎
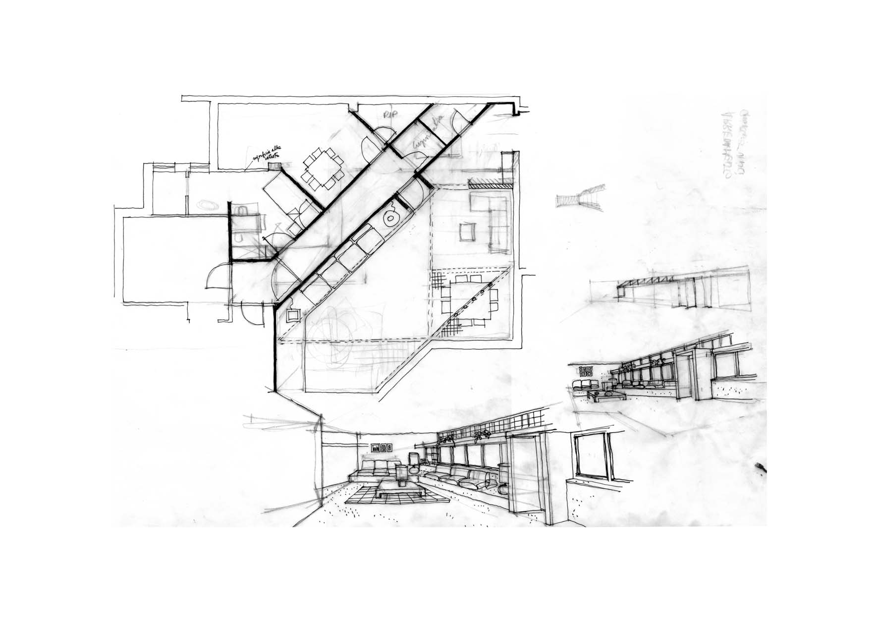
Appartamento Vinci, 1977