︎
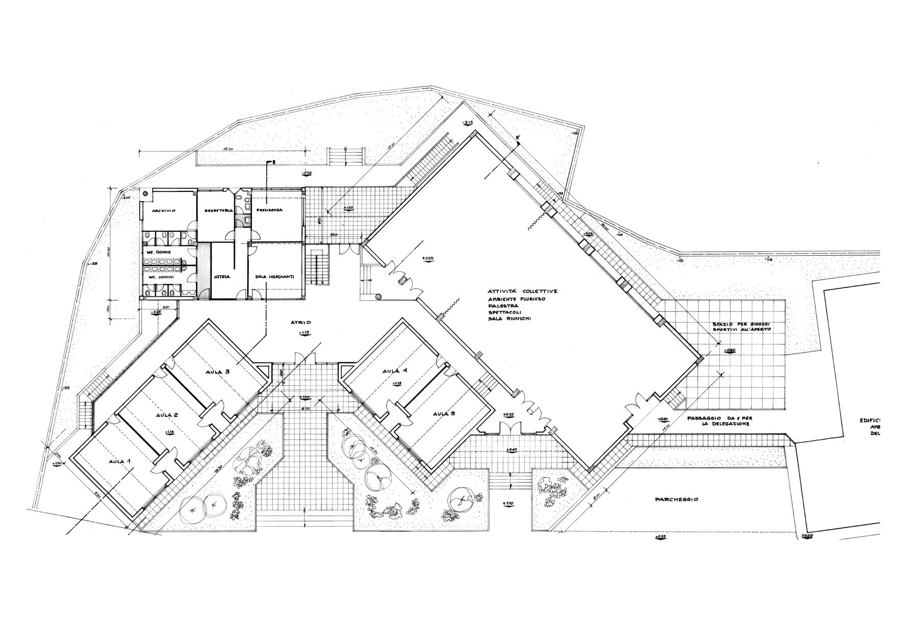
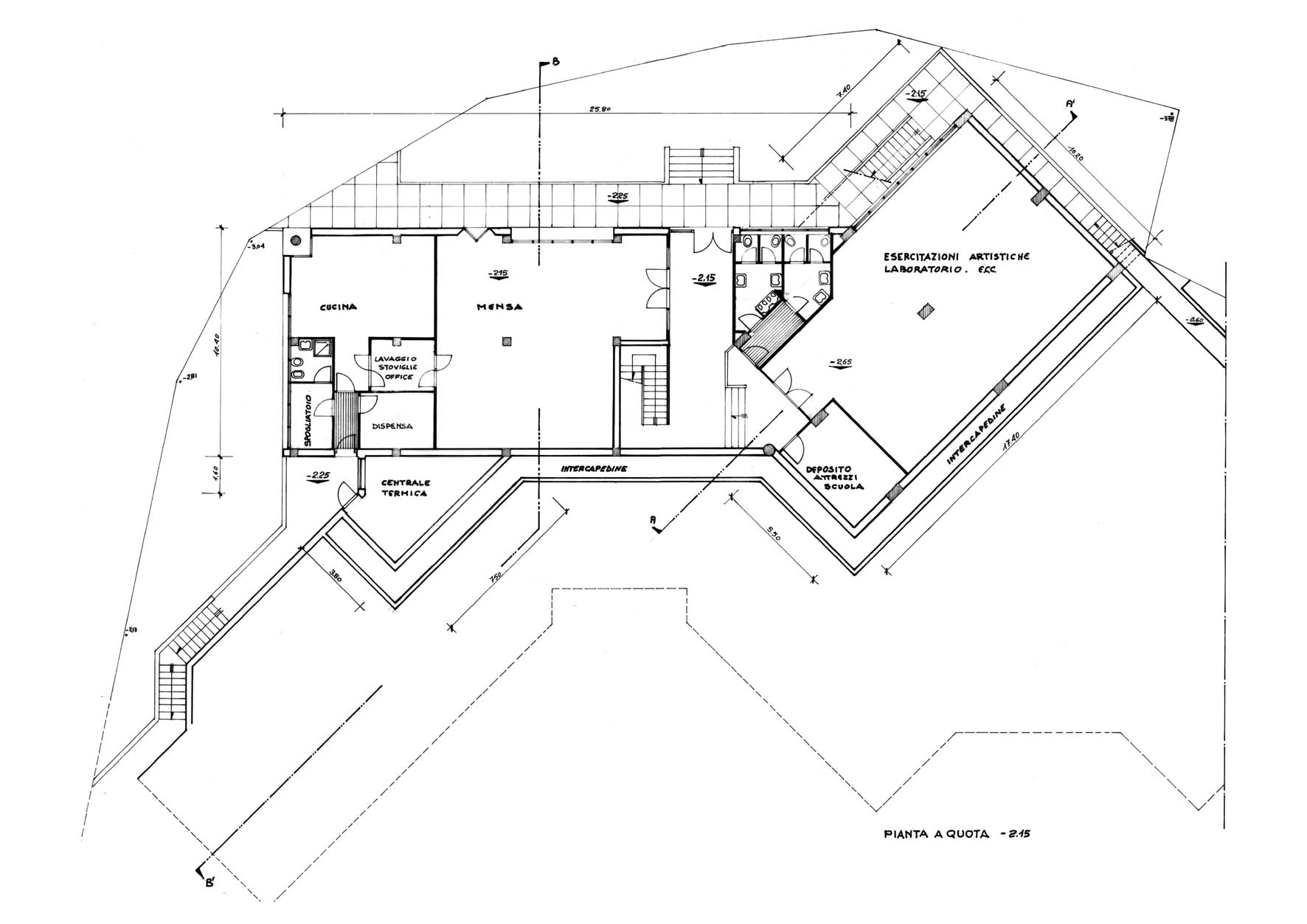
Scuola a Stintino, 1975