︎
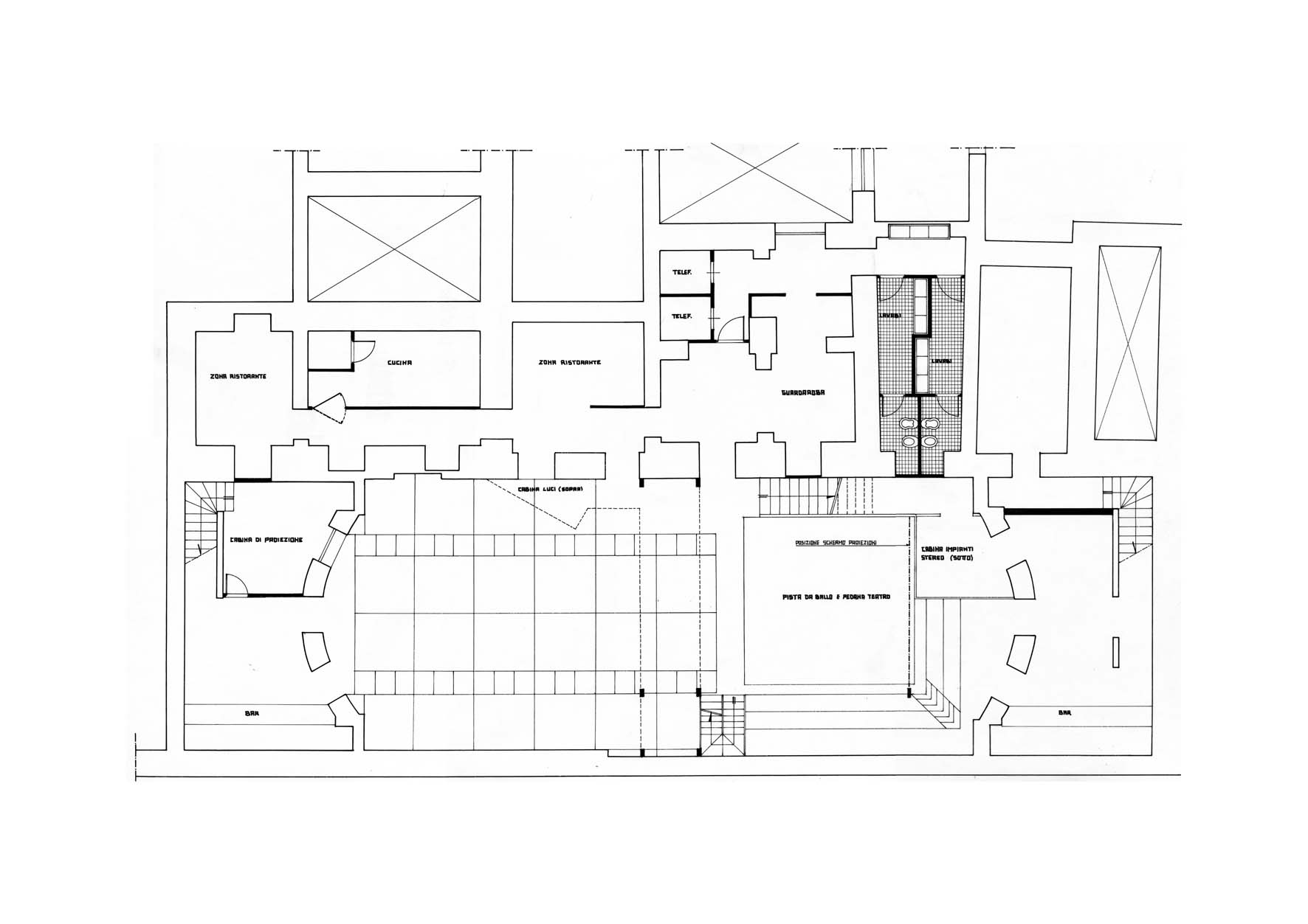
Spazio polivalente Via Gregoriana (Roma), 1972