︎
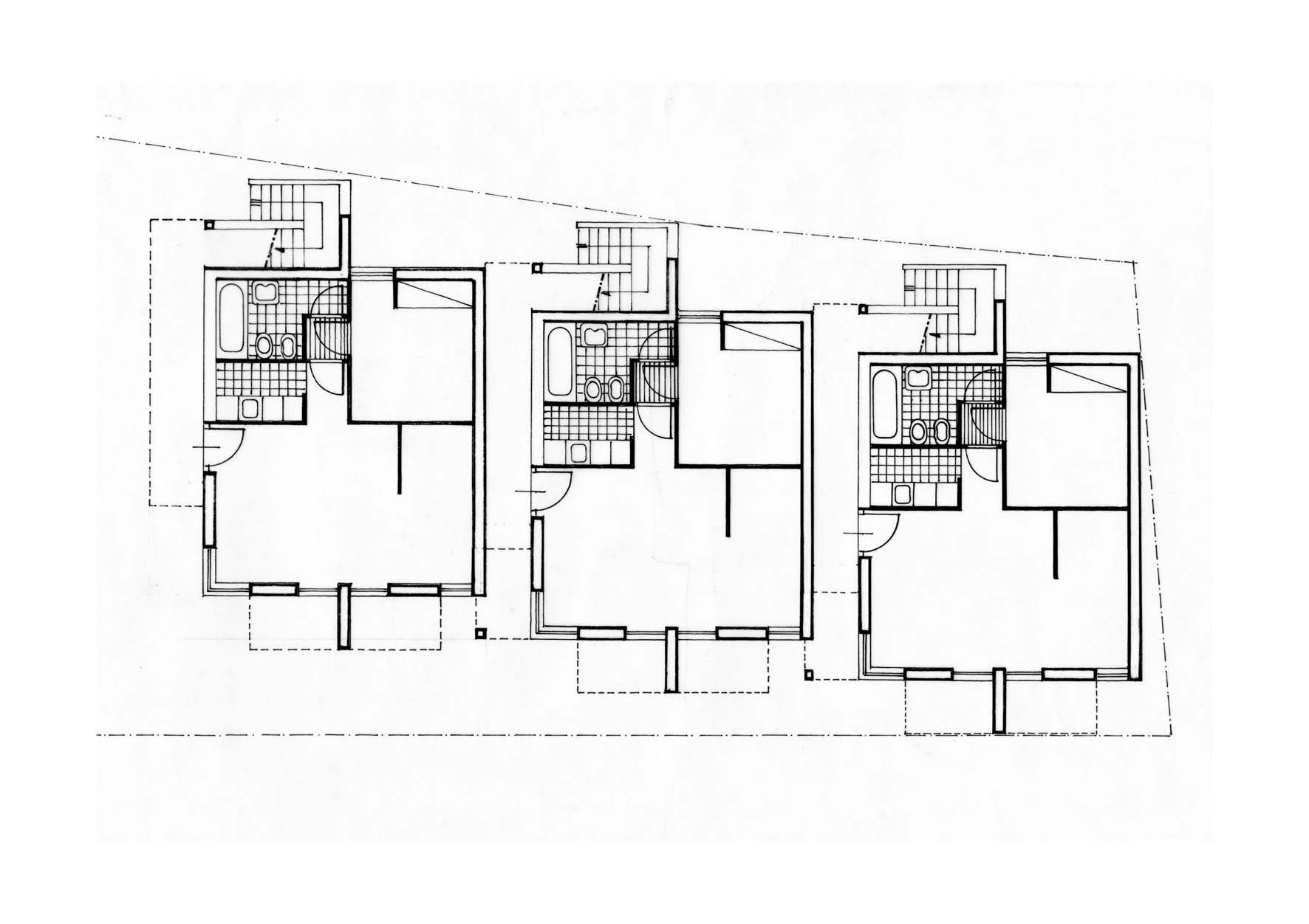
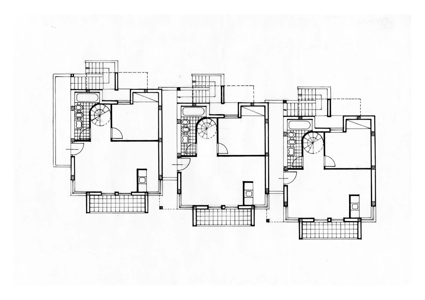
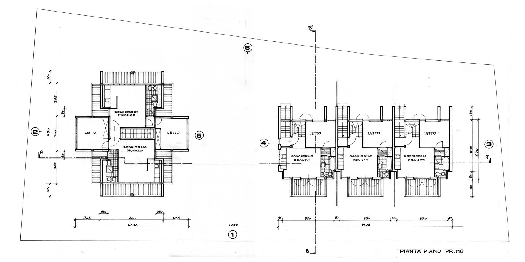
Case Nanni a Campo di Giove - 1972