︎
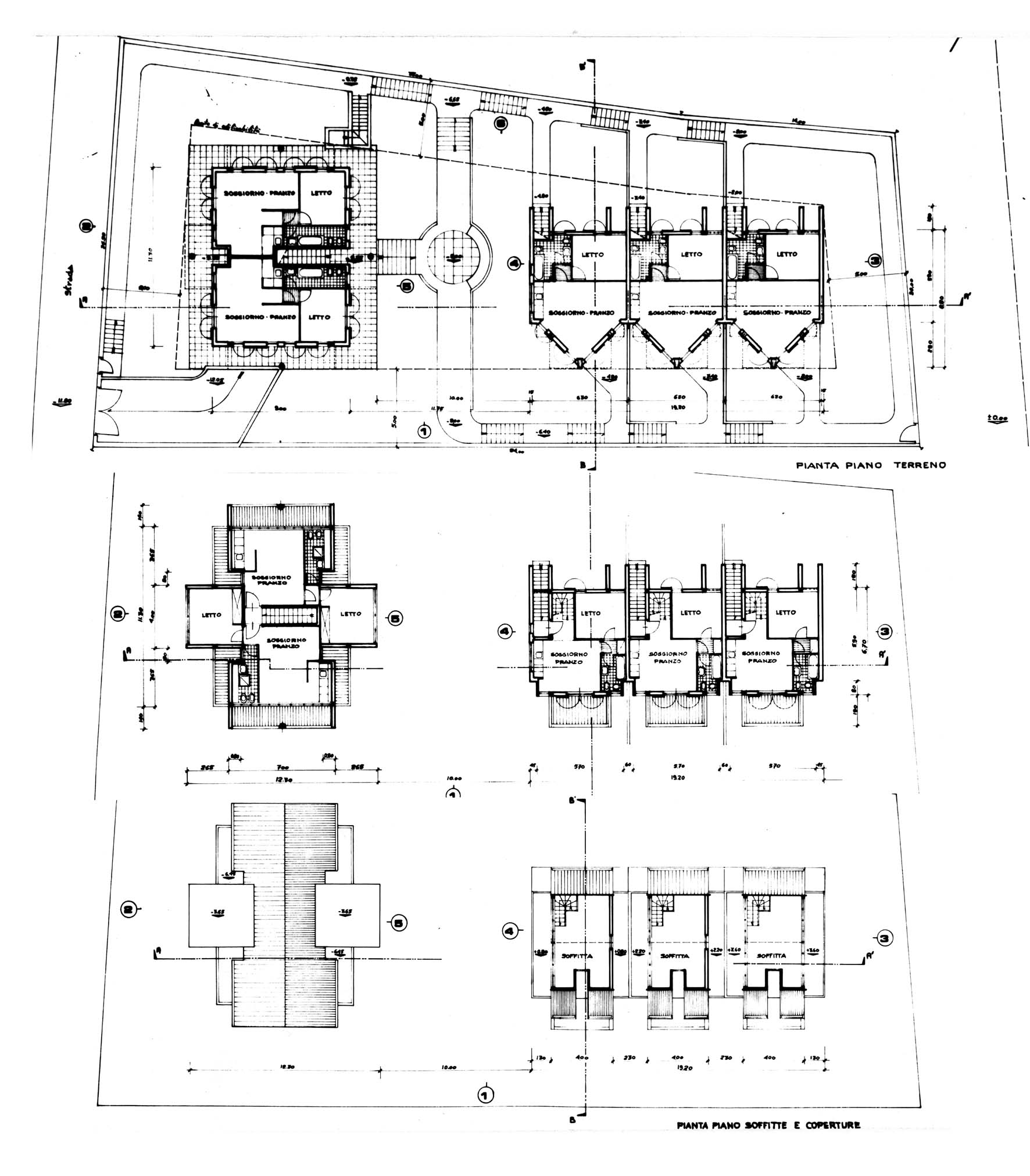
Campo di Giove (Schizzi preparatori) - 1970