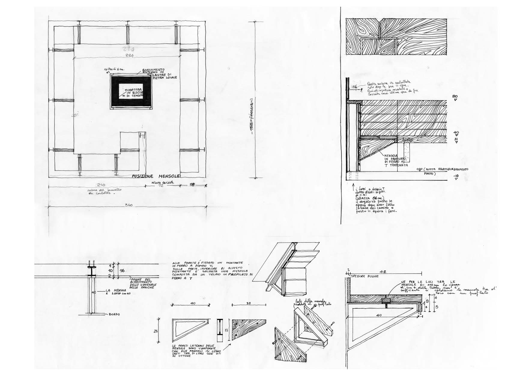
︎
Franco Purini - Disegni vari, 1969