︎
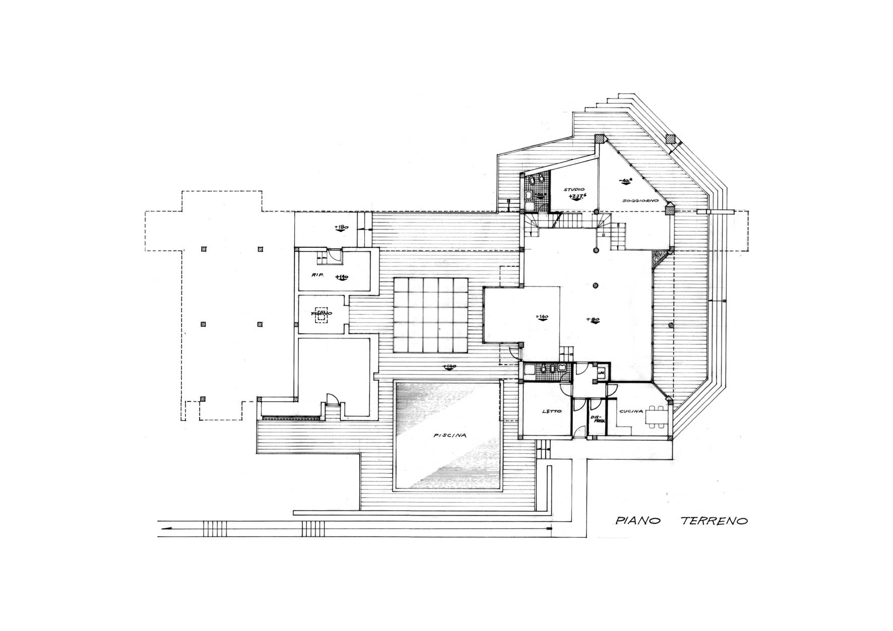
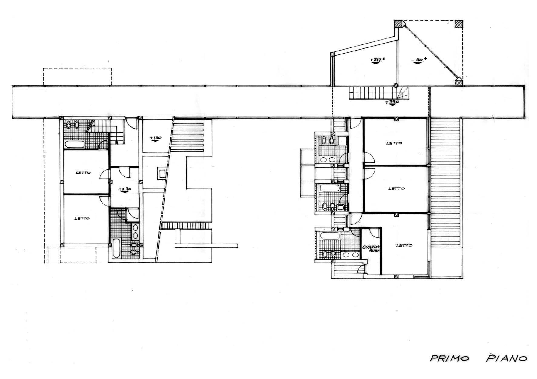
Casa Ponti - 1969