︎
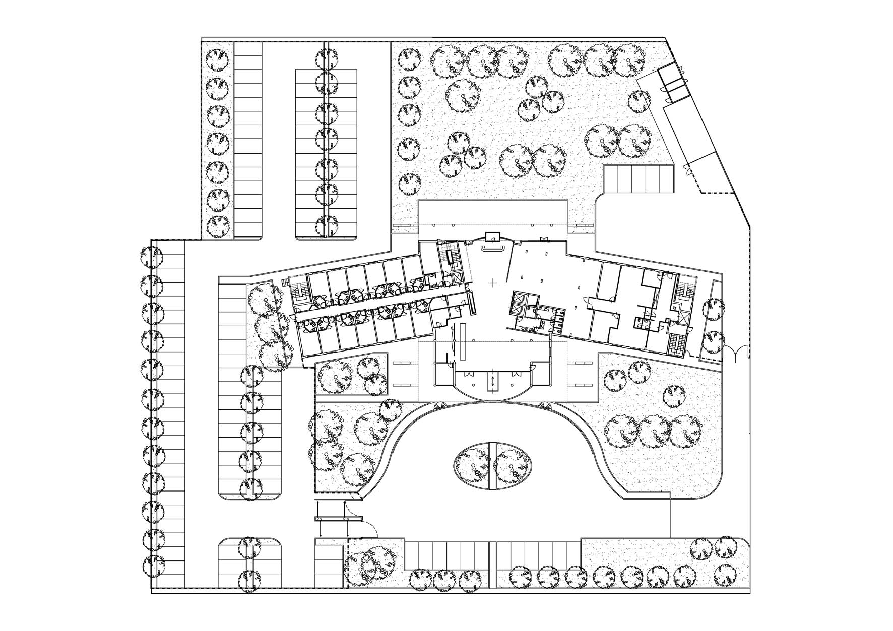
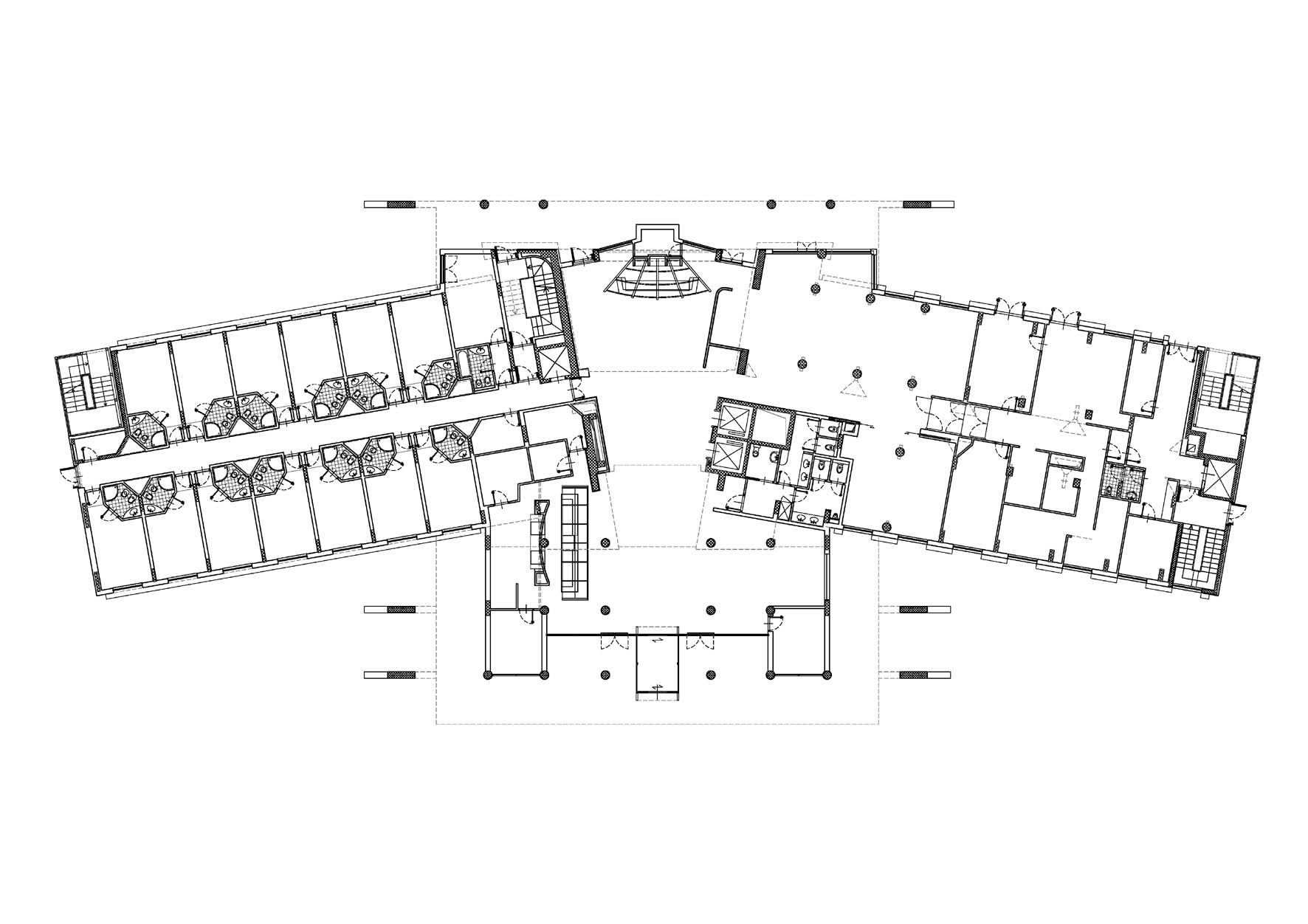
Hotel Rafael (Milano) - 2008
con Maria Cipriano